Elected Officials
Courts
Departments
Initiatives
Open Government
About
Login / Register
Home
/
Property & Tax Records
/
Property Records
/
Property & Tax Search
/
Parcel Profile
/
Print View
Search for Another Parcel
Parcel Profile
Historical Card
Sketches
Photos
Tax Map
Taxes
Print View
Print This Page
Address: 10 MAPLE ST
Parcel: 41004007000300
Parcel Profile
Address
10 | MAPLE | ST
Street Status
UNPAVED
School District
UNION CITY AREA SCHOOL
Acreage
0.2273
Classification
R
Land Use Code
SINGLE FAMILY
Legal Description
10 MAPLE ST 60X165
Square Feet
1392
Topo
LEVEL
Utility
ALL PUBLIC
Zoning
Please contact your municipal zoning officer
Deed Book
0686
Deed Page
1743
2026 Tax Values
Land Value / Taxable
11,000 / 11,000.00
Building Value / Taxable
37,320 / 37,320.00
Total Value / Taxable
48,320 / 48,320.00
Clean & Green
Inactive
Homestead Status
Active
Farmstead Status
Inactive
Lerta Amount
0
Lerta Expiration Year
0
Residential Data
Card 1
Style
OLD STYLE
Basement
FULL
Year Built
1910
Exterior Wall
ALUMINUM/VINYL
Total Living Area
1392
Full Baths
2
Half Baths
0
Fuel Type
GAS
Heating
CENTRAL
Heating System
HOT WATER
Stories
2.0
Total Bedrooms
4
Total Family Rooms
1
Total Rooms
8
Fireplaces
0
Other Buildings & Yards
No OBY Data Found
Sales History
Sale Date
Type
Price
Book / Page
Other Info
2/8/2000
LAND & BUILDING
31310
0686 / 1743
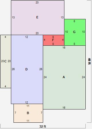
Parcel Sketches
Residential Card 1
A
MAIN
384 square feet
B
EFP ENCL FRAME PORCH
77 square feet
C
EFP ENCL FRAME PORCH
80 square feet
D
UNFIN BSMT BASEMENT UNFINISHED 1S FR ONE STORY FRAME 1S FR ONE STORY FRAME
312 square feet
E
FR GR FRAME GARAGE
260 square feet
F
EFP ENCL FRAME PORCH
32 square feet
G
WDDCK WOOD DECKS
80 square feet
Parcel Images
Please note:
this tab is for informational purposes only and may not show all delinquencies, see the Taxes tab for more accurate delinquent taxes due.