Elected Officials
Courts
Departments
Initiatives
Open Government
About
Login / Register
Home
/
Property & Tax Records
/
Property Records
/
Property & Tax Search
/
Parcel Profile
/
Print View
Search for Another Parcel
Parcel Profile
Historical Card
Sketches
Photos
Tax Map
Taxes
Print View
Print This Page
Address: 16 WATTSBURG ST
Parcel: 41005009001500
Parcel Profile
Address
16 | WATTSBURG | ST
Street Status
PAVED
School District
UNION CITY AREA SCHOOL
Acreage
0.2273
Classification
R
Land Use Code
SINGLE FAMILY
Legal Description
16 WATTSBURG ST 60X165
Square Feet
1344
Topo
LEVEL
Utility
ALL PUBLIC
Zoning
Please contact your municipal zoning officer
Deed Book
2024
Deed Page
020950
2026 Tax Values
Land Value / Taxable
11,000 / 11,000.00
Building Value / Taxable
60,320 / 60,320.00
Total Value / Taxable
71,320 / 71,320.00
Clean & Green
Inactive
Homestead Status
Active
Farmstead Status
Inactive
Lerta Amount
0
Lerta Expiration Year
0
Residential Data
Card 1
Style
CONVENTIONAL
Basement
FULL
Year Built
1900
Exterior Wall
ALUMINUM/VINYL
Total Living Area
1344
Full Baths
1
Half Baths
1
Fuel Type
GAS
Heating
CENTRAL
Heating System
FORCED AIR
Stories
2.0
Total Bedrooms
2
Total Family Rooms
0
Total Rooms
6
Fireplaces
0
Other Buildings & Yards
Description
Built
Width
Length
Area
FOUR SIDE CLOSED WD POLE BLDG
2010
25
24
600
Sales History
Sale Date
Type
Price
Book / Page
Other Info
12/20/2024
LAND & BUILDING
120000
2024 / 020950
SPECIAL WARRANTY DEED
9/29/1993
0
0294 / 0240
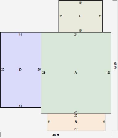
Parcel Sketches
Residential Card 1
A
MAIN
672 square feet
B
OFP OPEN FRAME PORCH
120 square feet
C
WDDCK WOOD DECKS
165 square feet
D
FR GR FRAME GARAGE
364 square feet
Parcel Images
Please note:
this tab is for informational purposes only and may not show all delinquencies, see the Taxes tab for more accurate delinquent taxes due.