Elected Officials
Courts
Departments
Initiatives
Open Government
About
Login / Register
Home
/
Property & Tax Records
/
Property Records
/
Property & Tax Search
/
Parcel Profile
/
Print View
Search for Another Parcel
Parcel Profile
Historical Card
Sketches
Photos
Tax Map
Taxes
Print View
Print This Page
Address: 36 PUTNAM ST
Parcel: 41006012000400
Parcel Profile
Address
36 | PUTNAM | ST
Street Status
PAVED | SIDEWALK
School District
UNION CITY AREA SCHOOL
Acreage
0.1435
Classification
R
Land Use Code
TWO FAMILY
Legal Description
36 PUTNAM ST 50X125
Square Feet
1632
Topo
LEVEL
Utility
ALL PUBLIC
Zoning
Please contact your municipal zoning officer
Deed Book
2018
Deed Page
021854
2026 Tax Values
Land Value / Taxable
9,500 / 9,500.00
Building Value / Taxable
44,630 / 44,630.00
Total Value / Taxable
54,130 / 54,130.00
Clean & Green
Inactive
Homestead Status
Inactive
Farmstead Status
Inactive
Lerta Amount
0
Lerta Expiration Year
0
Residential Data
Card 1
Style
OLD STYLE
Basement
FULL
Year Built
1915
Exterior Wall
ALUMINUM/VINYL
Total Living Area
1632
Full Baths
2
Half Baths
0
Fuel Type
GAS
Heating
CENTRAL
Heating System
FORCED AIR
Stories
2.0
Total Bedrooms
4
Total Family Rooms
0
Total Rooms
8
Fireplaces
0
Other Buildings & Yards
No OBY Data Found
Sales History
Sale Date
Type
Price
Book / Page
Other Info
10/22/2018
LAND & BUILDING
60000
2018 / 021854
WARRANTY/SURVIVORSHIP DEED
6/16/1992
0
0217 / 0782
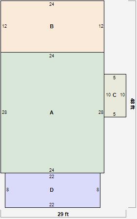
Parcel Sketches
Residential Card 1
A
MAIN
672 square feet
B
UNFIN BSMT BASEMENT UNFINISHED 1S FR ONE STORY FRAME
288 square feet
C
WDDCK WOOD DECKS
50 square feet
D
OFP OPEN FRAME PORCH
176 square feet
Parcel Images
Please note:
this tab is for informational purposes only and may not show all delinquencies, see the Taxes tab for more accurate delinquent taxes due.