Elected Officials
Courts
Departments
Initiatives
Open Government
About
Login / Register
Home
/
Property & Tax Records
/
Property Records
/
Property & Tax Search
/
Parcel Profile
/
Print View
Search for Another Parcel
Parcel Profile
Historical Card
Sketches
Photos
Tax Map
Taxes
Print View
Print This Page
Address: 52 PUTNAM ST
Parcel: 41006012001300
Parcel Profile
Address
52 | PUTNAM | ST
Street Status
PAVED | SIDEWALK
School District
UNION CITY AREA SCHOOL
Acreage
0.3322
Classification
R
Land Use Code
SINGLE FAMILY
Legal Description
52 PUTNAM ST 54X268 IRR
Square Feet
1200
Topo
LEVEL
Utility
ALL PUBLIC
Zoning
Please contact your municipal zoning officer
Deed Book
2014
Deed Page
011294
2026 Tax Values
Land Value / Taxable
11,500 / 11,500.00
Building Value / Taxable
49,100 / 49,100.00
Total Value / Taxable
60,600 / 60,600.00
Clean & Green
Inactive
Homestead Status
Active
Farmstead Status
Inactive
Lerta Amount
0
Lerta Expiration Year
0
Residential Data
Card 1
Style
BUNGALOW
Basement
FULL
Year Built
1895
Exterior Wall
ALUMINUM/VINYL
Total Living Area
1200
Full Baths
2
Half Baths
0
Fuel Type
GAS
Heating
CENTRAL
Heating System
FORCED AIR
Stories
1.0
Total Bedrooms
3
Total Family Rooms
0
Total Rooms
6
Fireplaces
0
Other Buildings & Yards
No OBY Data Found
Sales History
Sale Date
Type
Price
Book / Page
Other Info
6/9/2014
LAND & BUILDING
0
2014 / 011294
QUIT CLAIM DEED
12/17/1996
LAND & BUILDING
33500
476 / 1630
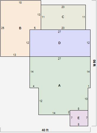
Parcel Sketches
Residential Card 1
A
MAIN
626 square feet
B
FR GR FRAME GARAGE
390 square feet
C
MA_PT CONC/MAS PATIO
220 square feet
D
1S FR ONE STORY FRAME
324 square feet
E
EFP ENCL FRAME PORCH
56 square feet
Parcel Images
Please note:
this tab is for informational purposes only and may not show all delinquencies, see the Taxes tab for more accurate delinquent taxes due.