Elected Officials
Courts
Departments
Initiatives
Open Government
About
Login / Register
Home
/
Property & Tax Records
/
Property Records
/
Property & Tax Search
/
Parcel Profile
/
Print View
Search for Another Parcel
Parcel Profile
Historical Card
Sketches
Photos
Tax Map
Taxes
Print View
Print This Page
Address: 60 PUTNAM ST
Parcel: 41006012001700
Parcel Profile
Address
60 | PUTNAM | ST
Street Status
PAVED | SIDEWALK
School District
UNION CITY AREA SCHOOL
Acreage
0.2989
Classification
R
Land Use Code
SINGLE FAMILY
Legal Description
60 PUTNAM ST 60X222 IRREG
Square Feet
1600
Topo
LEVEL
Utility
ALL PUBLIC
Zoning
Please contact your municipal zoning officer
Deed Book
1586
Deed Page
1730
2026 Tax Values
Land Value / Taxable
11,400 / 11,400.00
Building Value / Taxable
55,200 / 55,200.00
Total Value / Taxable
66,600 / 66,600.00
Clean & Green
Inactive
Homestead Status
Inactive
Farmstead Status
Inactive
Lerta Amount
0
Lerta Expiration Year
0
Residential Data
Card 1
Style
OLD STYLE
Basement
FULL
Year Built
1920
Exterior Wall
ALUMINUM/VINYL
Total Living Area
1600
Full Baths
1
Half Baths
0
Fuel Type
GAS
Heating
CENTRAL
Heating System
FORCED AIR
Stories
2.0
Total Bedrooms
3
Total Family Rooms
0
Total Rooms
9
Fireplaces
0
Other Buildings & Yards
Description
Built
Width
Length
Area
FRAME OR CB DETACHED GARAGE
1920
14
22
308
Sales History
Sale Date
Type
Price
Book / Page
Other Info
8/28/2009
LAND & BUILDING
66000
1586 / 1730
SPECIAL WARRANTY DEED
4/17/1991
0
0156 / 0637
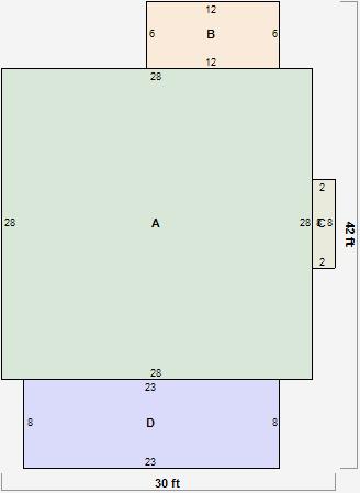
Parcel Sketches
Residential Card 1
A
MAIN
784 square feet
B
OFP OPEN FRAME PORCH
72 square feet
C
FRBAY FRAME BAY FRBAY FRAME BAY
16 square feet
D
OFP OPEN FRAME PORCH
184 square feet
Parcel Images
Please note:
this tab is for informational purposes only and may not show all delinquencies, see the Taxes tab for more accurate delinquent taxes due.