Elected Officials
Courts
Departments
Initiatives
Open Government
About
Login / Register
Home
/
Property & Tax Records
/
Property Records
/
Property & Tax Search
/
Parcel Profile
/
Print View
Search for Another Parcel
Parcel Profile
Historical Card
Sketches
Photos
Tax Map
Taxes
Print View
Print This Page
Address: 73 E HIGH ST
Parcel: 41006012002800
Parcel Profile
Address
73 | E | HIGH | ST
Street Status
PAVED | SIDEWALK
School District
UNION CITY AREA SCHOOL
Acreage
0.2870
Classification
R
Land Use Code
SINGLE FAMILY
Legal Description
73 E HIGH ST 50X250
Square Feet
2300
Topo
LEVEL
Utility
ALL PUBLIC
Zoning
Please contact your municipal zoning officer
Deed Book
2020
Deed Page
010746
2026 Tax Values
Land Value / Taxable
11,300 / 11,300.00
Building Value / Taxable
65,650 / 65,650.00
Total Value / Taxable
76,950 / 76,950.00
Clean & Green
Inactive
Homestead Status
Active
Farmstead Status
Inactive
Lerta Amount
0
Lerta Expiration Year
0
Residential Data
Card 1
Style
OLD STYLE
Basement
FULL
Year Built
1870
Exterior Wall
FRAME
Total Living Area
2300
Full Baths
1
Half Baths
1
Fuel Type
GAS
Heating
CENTRAL
Heating System
HOT WATER
Stories
2.0
Total Bedrooms
3
Total Family Rooms
0
Total Rooms
6
Fireplaces
0
Other Buildings & Yards
Description
Built
Width
Length
Area
FRAME OR CB DETACHED GARAGE
1950
18
20
360
Sales History
Sale Date
Type
Price
Book / Page
Other Info
6/17/2020
LAND & BUILDING
73000
2020 / 010746
SPECIAL WARRANTY DEED
3/26/2018
LAND & BUILDING
68000
2018 / 005462
SPECIAL WARRANTY DEED
3/14/2003
LAND & BUILDING
0
0986 / 0392
QUIT CLAIM DEED
10/13/2000
LAND & BUILDING
58500
732 / 185
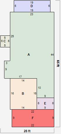
Parcel Sketches
Residential Card 1
A
MAIN
899 square feet
B
1S FR ONE STORY FRAME 1S FR ONE STORY FRAME
224 square feet
C
EFP ENCL FRAME PORCH
30 square feet
D
EFP ENCL FRAME PORCH
114 square feet
E
OFP OPEN FRAME PORCH 1S FR ONE STORY FRAME
54 square feet
F
OFP OPEN FRAME PORCH
198 square feet
Parcel Images
Please note:
this tab is for informational purposes only and may not show all delinquencies, see the Taxes tab for more accurate delinquent taxes due.