Elected Officials
Courts
Departments
Initiatives
Open Government
About
Login / Register
Home
/
Property & Tax Records
/
Property Records
/
Property & Tax Search
/
Parcel Profile
/
Print View
Search for Another Parcel
Parcel Profile
Historical Card
Sketches
Photos
Tax Map
Taxes
Print View
Print This Page
Address: 57 E HIGH ST
Parcel: 41006012003300
Parcel Profile
Address
57 | E | HIGH | ST
Street Status
PAVED | SIDEWALK
School District
UNION CITY AREA SCHOOL
Acreage
0.4764
Classification
R
Land Use Code
SINGLE FAMILY
Legal Description
57 E HIGH ST 82.5X250
Square Feet
1600
Topo
LEVEL
Utility
ALL PUBLIC
Zoning
Please contact your municipal zoning officer
Deed Book
0746
Deed Page
0248
2026 Tax Values
Land Value / Taxable
12,300 / 12,300.00
Building Value / Taxable
45,910 / 45,910.00
Total Value / Taxable
58,210 / 58,210.00
Clean & Green
Inactive
Homestead Status
Active
Farmstead Status
Inactive
Lerta Amount
0
Lerta Expiration Year
0
Residential Data
Card 1
Style
OLD STYLE
Basement
FULL
Year Built
1900
Exterior Wall
ALUMINUM/VINYL
Total Living Area
1600
Full Baths
1
Half Baths
0
Fuel Type
GAS
Heating
CENTRAL
Heating System
FORCED AIR
Stories
2.0
Total Bedrooms
3
Total Family Rooms
0
Total Rooms
7
Fireplaces
0
Other Buildings & Yards
No OBY Data Found
Sales History
Sale Date
Type
Price
Book / Page
Other Info
1/3/2001
LAND & BUILDING
28000
0746 / 0248
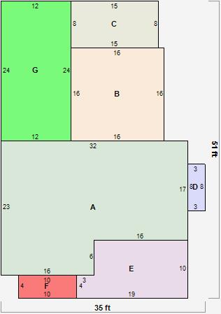
Parcel Sketches
Residential Card 1
A
MAIN
640 square feet
B
UNFIN BSMT BASEMENT UNFINISHED 1S FR ONE STORY FRAME AT UN ATTIC-UNFINISHED
256 square feet
C
FR UT FRAME UTILITY BUILDING
120 square feet
D
FRBAY FRAME BAY
24 square feet
E
OFP OPEN FRAME PORCH
172 square feet
F
FRBAY FRAME BAY
40 square feet
G
WDDCK WOOD DECKS
288 square feet
Parcel Images
Please note:
this tab is for informational purposes only and may not show all delinquencies, see the Taxes tab for more accurate delinquent taxes due.