Elected Officials
Courts
Departments
Initiatives
Open Government
About
Login / Register
Home
/
Property & Tax Records
/
Property Records
/
Property & Tax Search
/
Parcel Profile
/
Print View
Search for Another Parcel
Parcel Profile
Historical Card
Sketches
Photos
Tax Map
Taxes
Print View
Print This Page
Address: 20 CONCORD ST
Parcel: 41010038004700
Parcel Profile
Address
20 | CONCORD | ST
Street Status
PAVED
School District
UNION CITY AREA SCHOOL
Acreage
0.2530
Classification
R
Land Use Code
SINGLE FAMILY
Legal Description
20 CONCORD ST 45 X 114 IRREG
Square Feet
1176
Topo
LEVEL
Utility
PUBLIC WATER | GAS | SEPTIC
Zoning
Please contact your municipal zoning officer
Deed Book
1231
Deed Page
0913
2026 Tax Values
Land Value / Taxable
11,100 / 11,100.00
Building Value / Taxable
46,200 / 46,200.00
Total Value / Taxable
57,300 / 57,300.00
Clean & Green
Inactive
Homestead Status
Inactive
Farmstead Status
Inactive
Lerta Amount
0
Lerta Expiration Year
0
Residential Data
Card 1
Style
OLD STYLE
Basement
PART
Year Built
1949
Exterior Wall
ALUMINUM/VINYL
Total Living Area
1176
Full Baths
1
Half Baths
0
Fuel Type
GAS
Heating
NON CENTRAL
Heating System
FORCED AIR
Stories
1.5
Total Bedrooms
3
Total Family Rooms
0
Total Rooms
7
Fireplaces
0
Other Buildings & Yards
No OBY Data Found
Sales History
Sale Date
Type
Price
Book / Page
Other Info
5/4/2005
LAND & BUILDING
12000
1231 / 0913
DEED
3/8/2004
LAND & BUILDING
0
1112 / 2267
SHERIFF'S DED
6/20/1997
LAND & BUILDING
32000
505 / 558
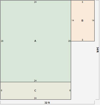
Parcel Sketches
Residential Card 1
A
MAIN
672 square feet
B
EFP ENCL FRAME PORCH
112 square feet
C
EFP ENCL FRAME PORCH
144 square feet
Parcel Images
Please note:
this tab is for informational purposes only and may not show all delinquencies, see the Taxes tab for more accurate delinquent taxes due.