Elected Officials
Courts
Departments
Initiatives
Open Government
About
Login / Register
Home
/
Property & Tax Records
/
Property Records
/
Property & Tax Search
/
Parcel Profile
/
Print View
Search for Another Parcel
Parcel Profile
Historical Card
Sketches
Photos
Tax Map
Taxes
Print View
Print This Page
Address: 9 MILES ST
Parcel: 41010038004900
Parcel Profile
Address
9 | MILES | ST
Street Status
PAVED | SIDEWALK
School District
UNION CITY AREA SCHOOL
Acreage
0.0698
Classification
R
Land Use Code
SINGLE FAMILY
Legal Description
9 MILES ST 52 X 120
Square Feet
1380
Topo
ABOVE STREET
Utility
ALL PUBLIC
Zoning
Please contact your municipal zoning officer
Deed Book
2021
Deed Page
011445
2026 Tax Values
Land Value / Taxable
8,200 / 8,200.00
Building Value / Taxable
30,905 / 30,905.00
Total Value / Taxable
39,105 / 39,105.00
Clean & Green
Inactive
Homestead Status
Inactive
Farmstead Status
Inactive
Lerta Amount
0
Lerta Expiration Year
0
Residential Data
Card 1
Style
OLD STYLE
Basement
FULL
Year Built
1903
Exterior Wall
ALUMINUM/VINYL
Total Living Area
1380
Full Baths
1
Half Baths
0
Fuel Type
GAS
Heating
CENTRAL
Heating System
FORCED AIR
Stories
2.0
Total Bedrooms
3
Total Family Rooms
0
Total Rooms
6
Fireplaces
0
Other Buildings & Yards
No OBY Data Found
Sales History
Sale Date
Type
Price
Book / Page
Other Info
5/7/2021
LAND & BUILDING
36000
2021 / 011445
SPECIAL WARRANTY DEED
2/24/2006
LAND & BUILDING
0
1308 / 1056
QUIT CLAIM DEED
2/2/1998
0
0540 / 1470
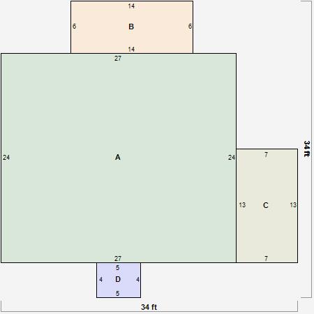
Parcel Sketches
Residential Card 1
A
MAIN
648 square feet
B
1S FR ONE STORY FRAME
84 square feet
C
OFP OPEN FRAME PORCH
91 square feet
D
OFP OPEN FRAME PORCH
20 square feet
Parcel Images
Please note:
this tab is for informational purposes only and may not show all delinquencies, see the Taxes tab for more accurate delinquent taxes due.