Elected Officials
Courts
Departments
Initiatives
Open Government
About
Login / Register
Home
/
Property & Tax Records
/
Property Records
/
Property & Tax Search
/
Parcel Profile
/
Print View
Search for Another Parcel
Parcel Profile
Historical Card
Sketches
Photos
Tax Map
Taxes
Print View
Print This Page
Address: 5 BANK ST
Parcel: 41010038005800
Parcel Profile
Address
5 | BANK | ST
Street Status
PAVED
School District
UNION CITY AREA SCHOOL
Acreage
0.0583
Classification
R
Land Use Code
TWO FAMILY
Legal Description
5 BANK ST 52 X 95 IRR
Square Feet
2253
Topo
LEVEL
Utility
ALL PUBLIC
Zoning
Please contact your municipal zoning officer
Deed Book
1133
Deed Page
0108
2026 Tax Values
Land Value / Taxable
8,000 / 8,000.00
Building Value / Taxable
32,000 / 32,000.00
Total Value / Taxable
40,000 / 40,000.00
Clean & Green
Inactive
Homestead Status
Inactive
Farmstead Status
Inactive
Lerta Amount
0
Lerta Expiration Year
0
Residential Data
Card 1
Style
OLD STYLE
Basement
FULL
Year Built
1906
Exterior Wall
ALUMINUM/VINYL
Total Living Area
2253
Full Baths
2
Half Baths
0
Fuel Type
GAS
Heating
CENTRAL
Heating System
HOT WATER
Stories
2.0
Total Bedrooms
3
Total Family Rooms
0
Total Rooms
7
Fireplaces
0
Other Buildings & Yards
No OBY Data Found
Sales History
Sale Date
Type
Price
Book / Page
Other Info
5/7/2004
LAND & BUILDING
15500
1133 / 0108
SPECIAL WARRANTY DEED
10/10/2003
LAND & BUILDING
0
1074 / 1354
DEED
10/9/1996
LAND & BUILDING
17000
466 / 169
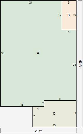
Parcel Sketches
Residential Card 1
A
MAIN
864 square feet
B
1S FR ONE STORY FRAME
50 square feet
C
OFP OPEN FRAME PORCH
127 square feet
Parcel Images
Please note:
this tab is for informational purposes only and may not show all delinquencies, see the Taxes tab for more accurate delinquent taxes due.