Elected Officials
Courts
Departments
Initiatives
Open Government
About
Login / Register
Home
/
Property & Tax Records
/
Property Records
/
Property & Tax Search
/
Parcel Profile
/
Print View
Search for Another Parcel
Parcel Profile
Historical Card
Sketches
Photos
Tax Map
Taxes
Print View
Print This Page
Address: 78 E HIGH ST
Parcel: 41011044000400
Parcel Profile
Address
78 | E | HIGH | ST
Street Status
PAVED | SIDEWALK
School District
UNION CITY AREA SCHOOL
Acreage
0.5301
Classification
R
Land Use Code
SINGLE FAMILY
Legal Description
78 E HIGH ST 92.4X255.75
Square Feet
1960
Topo
LEVEL
Utility
ALL PUBLIC
Zoning
Please contact your municipal zoning officer
Deed Book
2024
Deed Page
006557
2026 Tax Values
Land Value / Taxable
12,600 / 12,600.00
Building Value / Taxable
68,730 / 68,730.00
Total Value / Taxable
81,330 / 81,330.00
Clean & Green
Inactive
Homestead Status
Active
Farmstead Status
Inactive
Lerta Amount
0
Lerta Expiration Year
0
Residential Data
Card 1
Style
OLD STYLE
Basement
FULL
Year Built
1875
Exterior Wall
ALUMINUM/VINYL
Total Living Area
1960
Full Baths
2
Half Baths
0
Fuel Type
GAS
Heating
CENTRAL
Heating System
FORCED AIR
Stories
2.0
Total Bedrooms
4
Total Family Rooms
0
Total Rooms
6
Fireplaces
1
Other Buildings & Yards
Description
Built
Width
Length
Area
FRAME OR CB DETACHED GARAGE
1955
14
20
280
FRAME UTILITY SHED
1960
14
12
168
Sales History
Sale Date
Type
Price
Book / Page
Other Info
5/2/2024
LAND & BUILDING
150000
2024 / 006557
SPECIAL WARRANTY DEED
10/15/2013
LAND & BUILDING
0
2013 / 027372
SPECIAL WARRANTY DEED
4/17/1956
0
0726 / 0492
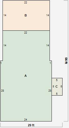
Parcel Sketches
Residential Card 1
A
MAIN
980 square feet
B
EFP ENCL FRAME PORCH
308 square feet
C
EFP ENCL FRAME PORCH
40 square feet
Parcel Images
Please note:
this tab is for informational purposes only and may not show all delinquencies, see the Taxes tab for more accurate delinquent taxes due.