Elected Officials
Courts
Departments
Initiatives
Open Government
About
Login / Register
Home
/
Property & Tax Records
/
Property Records
/
Property & Tax Search
/
Parcel Profile
/
Print View
Search for Another Parcel
Parcel Profile
Historical Card
Sketches
Photos
Tax Map
Taxes
Print View
Print This Page
Address: 90 E HIGH ST
Parcel: 41011044000800
Parcel Profile
Address
90 | E | HIGH | ST
Street Status
PAVED | SIDEWALK
School District
UNION CITY AREA SCHOOL
Acreage
0.1281
Classification
R
Land Use Code
SINGLE FAMILY
Legal Description
90 E HIGH ST 36 X 155 IRR
Square Feet
1392
Topo
LEVEL
Utility
ALL PUBLIC
Zoning
Please contact your municipal zoning officer
Deed Book
2022
Deed Page
004247
2026 Tax Values
Land Value / Taxable
9,200 / 9,200.00
Building Value / Taxable
57,700 / 57,700.00
Total Value / Taxable
66,900 / 66,900.00
Clean & Green
Inactive
Homestead Status
Active
Farmstead Status
Inactive
Lerta Amount
0
Lerta Expiration Year
0
Residential Data
Card 1
Style
OLD STYLE
Basement
FULL
Year Built
1910
Exterior Wall
BLOCK
Total Living Area
1392
Full Baths
1
Half Baths
1
Fuel Type
GAS
Heating
CENTRAL
Heating System
FORCED AIR
Stories
2.0
Total Bedrooms
3
Total Family Rooms
0
Total Rooms
6
Fireplaces
0
Other Buildings & Yards
Description
Built
Width
Length
Area
METAL SHED
1950
8
12
96
Sales History
Sale Date
Type
Price
Book / Page
Other Info
2/28/2022
LAND & BUILDING
88250
2022 / 004247
FIDUCIARY DEED
3/31/1986
0
1623 / 0169
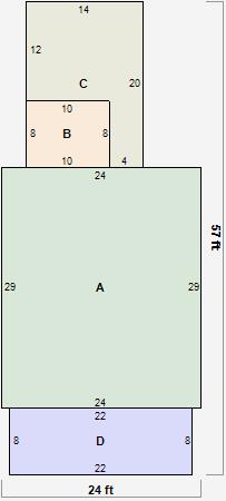
Parcel Sketches
Residential Card 1
A
MAIN
696 square feet
B
EFP ENCL FRAME PORCH
80 square feet
C
WDDCK WOOD DECKS
200 square feet
D
EFP ENCL FRAME PORCH
176 square feet
Parcel Images
Please note:
this tab is for informational purposes only and may not show all delinquencies, see the Taxes tab for more accurate delinquent taxes due.