Elected Officials
Courts
Departments
Initiatives
Open Government
About
Login / Register
Home
/
Property & Tax Records
/
Property Records
/
Property & Tax Search
/
Parcel Profile
/
Print View
Search for Another Parcel
Parcel Profile
Historical Card
Sketches
Photos
Tax Map
Taxes
Print View
Print This Page
Address: 11 LIBERTY ST
Parcel: 41012047000400
Parcel Profile
Address
11 | LIBERTY | ST
Street Status
UNPAVED
School District
UNION CITY AREA SCHOOL
Acreage
0.8099
Classification
R
Land Use Code
SINGLE FAMILY
Legal Description
11 LIBERTY ST 98.87X240.46IR
Square Feet
1899
Topo
ROLLING
Utility
ALL PUBLIC
Zoning
Please contact your municipal zoning officer
Deed Book
0141
Deed Page
1142
2026 Tax Values
Land Value / Taxable
14,000 / 14,000.00
Building Value / Taxable
47,500 / 47,500.00
Total Value / Taxable
61,500 / 61,500.00
Clean & Green
Inactive
Homestead Status
Active
Farmstead Status
Inactive
Lerta Amount
0
Lerta Expiration Year
0
Residential Data
Card 1
Style
OLD STYLE
Basement
PART
Year Built
1900
Exterior Wall
FRAME
Total Living Area
1899
Full Baths
1
Half Baths
0
Fuel Type
GAS
Heating
CENTRAL
Heating System
FORCED AIR
Stories
1.5
Total Bedrooms
4
Total Family Rooms
0
Total Rooms
8
Fireplaces
1
Other Buildings & Yards
No OBY Data Found
Sales History
Sale Date
Type
Price
Book / Page
Other Info
10/26/1990
0
0141 / 1142
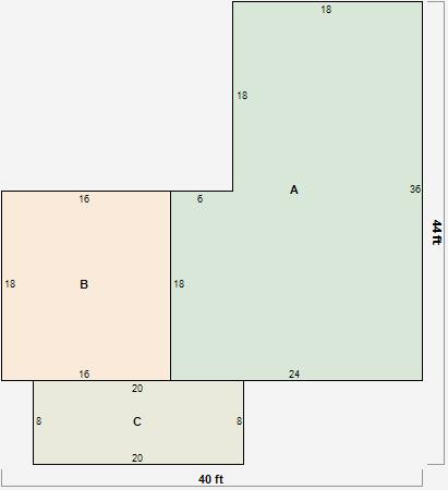
Parcel Sketches
Residential Card 1
A
MAIN
756 square feet
B
1S FR ONE STORY FRAME 1S FR ONE STORY FRAME
288 square feet
C
OFP OPEN FRAME PORCH
160 square feet
Parcel Images