Elected Officials
Courts
Departments
Initiatives
Open Government
About
Login / Register
Home
/
Property & Tax Records
/
Property Records
/
Property & Tax Search
/
Parcel Profile
/
Print View
Search for Another Parcel
Parcel Profile
Historical Card
Sketches
Photos
Tax Map
Taxes
Print View
Print This Page
Address: 200 CONCORD ST
Parcel: 41013050000700
Parcel Profile
Address
200 | CONCORD | ST
Street Status
PAVED
School District
UNION CITY AREA SCHOOL
Acreage
2.5300
Classification
R
Land Use Code
SINGLE FAMILY
Legal Description
200 CONCORD ST 2.53 AC
Square Feet
1440
Topo
LEVEL
Utility
ALL PUBLIC
Zoning
Please contact your municipal zoning officer
Deed Book
2024
Deed Page
004497
2026 Tax Values
Land Value / Taxable
17,600 / 17,600.00
Building Value / Taxable
67,100 / 67,100.00
Total Value / Taxable
84,700 / 84,700.00
Clean & Green
Inactive
Homestead Status
Inactive
Farmstead Status
Inactive
Lerta Amount
0
Lerta Expiration Year
0
Residential Data
Card 1
Style
OLD STYLE
Basement
FULL
Year Built
1900
Exterior Wall
COMPOSITION
Total Living Area
1440
Full Baths
1
Half Baths
0
Fuel Type
GAS
Heating
CENTRAL
Heating System
FORCED AIR
Stories
2.0
Total Bedrooms
2
Total Family Rooms
0
Total Rooms
6
Fireplaces
1
Other Buildings & Yards
Description
Built
Width
Length
Area
FOUR SIDE CLOSED WD POLE BLDG
2004
24
32
768
Sales History
Sale Date
Type
Price
Book / Page
Other Info
3/26/2024
LAND & BUILDING
0
2024 / 004497
QUIT CLAIM DEED
12/3/2001
LAND & BUILDING
0
0830 / 1038
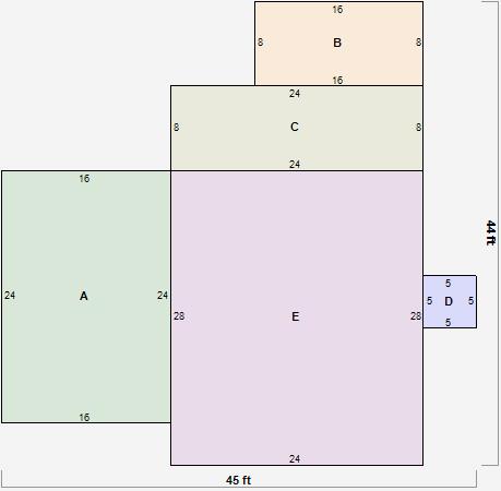
Parcel Sketches
Residential Card 1
A
MAIN
384 square feet
B
OFP OPEN FRAME PORCH
128 square feet
C
EFP ENCL FRAME PORCH
192 square feet
D
FR UT FRAME UTILITY BUILDING
25 square feet
E
UNFIN BSMT BASEMENT UNFINISHED 1S FR ONE STORY FRAME
672 square feet
Parcel Images
Please note:
this tab is for informational purposes only and may not show all delinquencies, see the Taxes tab for more accurate delinquent taxes due.