Elected Officials
Courts
Departments
Initiatives
Open Government
About
Login / Register
Home
/
Property & Tax Records
/
Property Records
/
Property & Tax Search
/
Parcel Profile
/
Print View
Search for Another Parcel
Parcel Profile
Historical Card
Sketches
Photos
Tax Map
Taxes
Print View
Print This Page
Address: 12 PLEASANT ST
Parcel: 41014056000200
Parcel Profile
Address
12 | PLEASANT | ST
Street Status
UNPAVED
School District
UNION CITY AREA SCHOOL
Acreage
0.3570
Classification
R
Land Use Code
SINGLE FAMILY
Legal Description
12 PLEASANT ST 200 X 75
Square Feet
792
Topo
LEVEL
Utility
PUBLIC WATER | GAS | SEPTIC
Zoning
Please contact your municipal zoning officer
Deed Book
0321
Deed Page
0296
2026 Tax Values
Land Value / Taxable
11,700 / 11,700.00
Building Value / Taxable
22,000 / 22,000.00
Total Value / Taxable
33,700 / 33,700.00
Clean & Green
Inactive
Homestead Status
Active
Farmstead Status
Inactive
Lerta Amount
0
Lerta Expiration Year
0
Residential Data
Card 1
Style
BUNGALOW
Basement
PART
Year Built
1900
Exterior Wall
ALUMINUM/VINYL
Total Living Area
792
Full Baths
1
Half Baths
0
Fuel Type
GAS
Heating
CENTRAL
Heating System
HOT WATER
Stories
1.0
Total Bedrooms
2
Total Family Rooms
0
Total Rooms
5
Fireplaces
0
Other Buildings & Yards
Description
Built
Width
Length
Area
FRAME OR CB DETACHED GARAGE
1977
14
24
336
Sales History
Sale Date
Type
Price
Book / Page
Other Info
2/28/1994
0
0321 / 0296
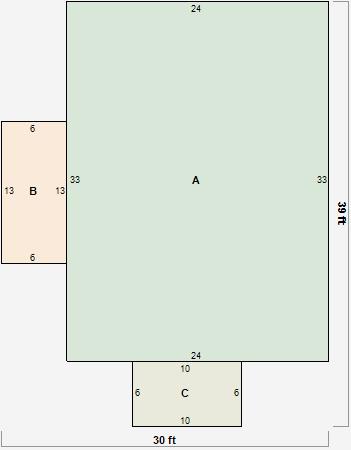
Parcel Sketches
Residential Card 1
A
MAIN
792 square feet
B
WDDCK WOOD DECKS
78 square feet
C
WDDCK WOOD DECKS
60 square feet
Parcel Images