Address: 99 CONCORD ST   Parcel: 41014058003100
Parcel Profile
Address99 | CONCORD | ST
Street StatusPAVED
School DistrictUNION CITY AREA SCHOOL
Acreage0.7840
ClassificationR
Land Use CodeSINGLE FAMILY
Legal Description99 CONCORD ST 110 X 244.35 IRREG | 0.784 AC | REF S27-185
Square Feet1136
TopoLEVEL
UtilityPUBLIC WATER | GAS | SEPTIC
ZoningPlease contact your municipal zoning officer
Deed Book2023
Deed Page021819
2025 Tax Values
Land Value / Taxable13,900 / 13,900.00
Building Value / Taxable65,580 / 65,580.00
Total Value / Taxable79,480 / 79,480.00
Clean & GreenInactive
Homestead StatusActive
Farmstead StatusInactive
Lerta Amount0
Lerta Expiration Year0
Residential Data
Card 1
     StyleRANCH
     BasementFULL
     Year Built1900
     Exterior WallALUMINUM/VINYL
     Total Living Area1136
     Full Baths1
     Half Baths0
     Fuel TypeGAS
     HeatingCENTRAL
     Heating SystemFORCED AIR
     Stories1.0
     Total Bedrooms2
     Total Family Rooms0
     Total Rooms4
     Fireplaces0
Other Buildings & Yards
DescriptionBuiltWidthLengthArea
 FLAT BARN 1880 24 36 864
 ONE SIDE OPEN MTL POLE BLDG 2011 14 28 392
 ONE SIDE OPEN MTL POLE BLDG 2016 16 24 384
 FOUR SIDE CLOSED MTL POLE BLDG 2019 20 20 400
Sales History
Sale DateTypePriceBook / PageOther Info
12/18/2023LAND & BUILDING02023 / 021819SPECIAL WARRANTY DEED
9/9/2011LAND & BUILDING02011 / 021352DEED
7/1/2009LAND & BUILDING170001573 / 1358DEED
6/20/2008LAND & BUILDING01503 / 1178SHERIFF'S DED
7/2/1990 00128 / 0966 



Parcel Sketches

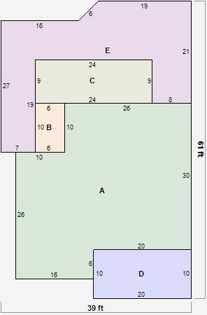
Residential Card 1

Residential Card 1
AMAIN1076 square feet
B 1S FR ONE STORY FRAME 60 square feet
C EFP ENCL FRAME PORCH 216 square feet
D EFP ENCL FRAME PORCH 200 square feet
E WDDCK WOOD DECKS 601 square feet

Parcel Images

parcel photoparcel photo