Address: 42 GILLETTE ST   Parcel: 41014059000900
Parcel Profile
Address42 | GILLETTE | ST
Street StatusUNPAVED
School DistrictUNION CITY AREA SCHOOL
Acreage0.4799
ClassificationR
Land Use CodeSINGLE FAMILY
Legal Description42 44 GILLETTE 189.8X110.15 I
Square Feet1056
TopoLEVEL
UtilityPUBLIC WATER | GAS | SEPTIC
ZoningPlease contact your municipal zoning officer
Deed Book2015
Deed Page019123
2025 Tax Values
Land Value / Taxable12,300 / 12,300.00
Building Value / Taxable32,110 / 32,110.00
Total Value / Taxable44,410 / 44,410.00
Clean & GreenInactive
Homestead StatusInactive
Farmstead StatusInactive
Lerta Amount0
Lerta Expiration Year0
Residential Data
Card 1
     StyleOLD STYLE
     BasementFULL
     Year Built1920
     Exterior WallBLOCK
     Total Living Area1056
     Full Baths1
     Half Baths0
     Fuel TypeGAS
     HeatingCENTRAL
     Heating SystemFORCED AIR
     Stories2.0
     Total Bedrooms3
     Total Family Rooms0
     Total Rooms6
     Fireplaces0
Other Buildings & Yards
DescriptionBuiltWidthLengthArea
 FRAME UTILITY SHED 1920 14 20 280
 FRAME OR CB DETACHED GARAGE 1977 24 24 576
Sales History
Sale DateTypePriceBook / PageOther Info
9/1/2015LAND & BUILDING02015 / 019123SPECIAL WARRANTY DEED
6/19/1997 00504 / 0642 
6/6/1997LAND & BUILDING22000503 / 1821 



Parcel Sketches

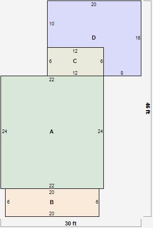
Residential Card 1

Residential Card 1
AMAIN528 square feet
B EFP ENCL FRAME PORCH 120 square feet
C EFP ENCL FRAME PORCH 72 square feet
D WDDCK WOOD DECKS 248 square feet

Parcel Images

parcel photoparcel photoparcel photoparcel photo