Elected Officials
Courts
Departments
Initiatives
Open Government
About
Login / Register
Home
/
Property & Tax Records
/
Property Records
/
Property & Tax Search
/
Parcel Profile
/
Print View
Search for Another Parcel
Parcel Profile
Historical Card
Sketches
Photos
Tax Map
Taxes
Print View
Print This Page
Address: 4 GRANT ST
Parcel: 41015070000200
Parcel Profile
Address
4 | GRANT | ST
Street Status
UNPAVED | SIDEWALK
School District
UNION CITY AREA SCHOOL
Acreage
0.2424
Classification
R
Land Use Code
SINGLE FAMILY
Legal Description
4 GRANT ST 80 X 132
Square Feet
2352
Topo
ABOVE STREET | STEEP
Utility
ALL PUBLIC
Zoning
Please contact your municipal zoning officer
Deed Book
2021
Deed Page
020213
2026 Tax Values
Land Value / Taxable
11,100 / 11,100.00
Building Value / Taxable
57,640 / 57,640.00
Total Value / Taxable
68,740 / 68,740.00
Clean & Green
Inactive
Homestead Status
Active
Farmstead Status
Inactive
Lerta Amount
0
Lerta Expiration Year
0
Residential Data
Card 1
Style
OLD STYLE
Basement
PART
Year Built
1875
Exterior Wall
ALUMINUM/VINYL
Total Living Area
2352
Full Baths
1
Half Baths
0
Fuel Type
GAS
Heating
CENTRAL
Heating System
HOT WATER
Stories
2.0
Total Bedrooms
3
Total Family Rooms
0
Total Rooms
7
Fireplaces
0
Other Buildings & Yards
No OBY Data Found
Sales History
Sale Date
Type
Price
Book / Page
Other Info
7/30/2021
LAND & BUILDING
48500
2021 / 020213
SPECIAL WARRANTY DEED
5/19/2008
LAND & BUILDING
0
1495 / 1315
QUIT CLAIM DEED
9/5/2007
LAND & BUILDING
0
1445 / 0276
QUIT CLAIM DEED
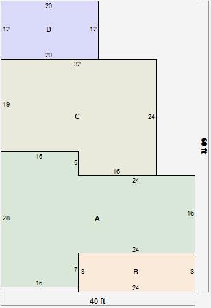
Parcel Sketches
Residential Card 1
A
MAIN
832 square feet
B
OFP OPEN FRAME PORCH
192 square feet
C
1S FR ONE STORY FRAME
688 square feet
D
OFP OPEN FRAME PORCH
240 square feet
Parcel Images
Please note:
this tab is for informational purposes only and may not show all delinquencies, see the Taxes tab for more accurate delinquent taxes due.