Elected Officials
Courts
Departments
Initiatives
Open Government
About
Login / Register
Home
/
Property & Tax Records
/
Property Records
/
Property & Tax Search
/
Parcel Profile
/
Print View
Search for Another Parcel
Parcel Profile
Historical Card
Sketches
Photos
Tax Map
Taxes
Print View
Print This Page
Address: 38 MILES ST
Parcel: 41015070000400
Parcel Profile
Address
38 | MILES | ST
Street Status
PAVED | SIDEWALK
School District
UNION CITY AREA SCHOOL
Acreage
0.2611
Classification
R
Land Use Code
SINGLE FAMILY
Legal Description
38 MILES ST 102.5 X 130 IRR
Square Feet
2312
Topo
ABOVE STREET
Utility
ALL PUBLIC
Zoning
Please contact your municipal zoning officer
Deed Book
0757
Deed Page
1370
2026 Tax Values
Land Value / Taxable
11,200 / 11,200.00
Building Value / Taxable
51,810 / 51,810.00
Total Value / Taxable
63,010 / 63,010.00
Clean & Green
Inactive
Homestead Status
Active
Farmstead Status
Inactive
Lerta Amount
0
Lerta Expiration Year
0
Residential Data
Card 1
Style
OLD STYLE
Basement
FULL
Year Built
1900
Exterior Wall
ALUMINUM/VINYL
Total Living Area
2312
Full Baths
1
Half Baths
1
Fuel Type
GAS
Heating
CENTRAL
Heating System
HOT WATER
Stories
2.0
Total Bedrooms
4
Total Family Rooms
0
Total Rooms
8
Fireplaces
0
Other Buildings & Yards
No OBY Data Found
Sales History
Sale Date
Type
Price
Book / Page
Other Info
3/12/2001
0
0757 / 1370
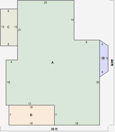
Parcel Sketches
Residential Card 1
A
MAIN
1123 square feet
B
EFP ENCL FRAME PORCH
112 square feet
C
EFP ENCL FRAME PORCH
78 square feet
D
FRBAY FRAME BAY FROVR FRAME OVERHANG
33 square feet
Parcel Images
Please note:
this tab is for informational purposes only and may not show all delinquencies, see the Taxes tab for more accurate delinquent taxes due.