Elected Officials
Courts
Departments
Initiatives
Open Government
About
Login / Register
Home
/
Property & Tax Records
/
Property Records
/
Property & Tax Search
/
Parcel Profile
/
Print View
Search for Another Parcel
Parcel Profile
Historical Card
Sketches
Photos
Tax Map
Taxes
Print View
Print This Page
Address: 50 MILES ST
Parcel: 41015070000900
Parcel Profile
Address
50 | MILES | ST
Street Status
PAVED | SIDEWALK
School District
UNION CITY AREA SCHOOL
Acreage
0.2847
Classification
R
Land Use Code
SINGLE FAMILY
Legal Description
50 MILES ST 60 X 205 IRR
Square Feet
1660
Topo
LEVEL
Utility
ALL PUBLIC
Zoning
Please contact your municipal zoning officer
Deed Book
2023
Deed Page
008457
2026 Tax Values
Land Value / Taxable
11,300 / 11,300.00
Building Value / Taxable
44,790 / 44,790.00
Total Value / Taxable
56,090 / 56,090.00
Clean & Green
Inactive
Homestead Status
Active
Farmstead Status
Inactive
Lerta Amount
0
Lerta Expiration Year
0
Residential Data
Card 1
Style
OLD STYLE
Basement
PART
Year Built
1910
Exterior Wall
ALUMINUM/VINYL
Total Living Area
1660
Full Baths
1
Half Baths
0
Fuel Type
GAS
Heating
CENTRAL
Heating System
HOT WATER
Stories
2.0
Total Bedrooms
2
Total Family Rooms
0
Total Rooms
5
Fireplaces
0
Other Buildings & Yards
Description
Built
Width
Length
Area
FRAME UTILITY SHED
2024
0
0
144
Sales History
Sale Date
Type
Price
Book / Page
Other Info
6/2/2023
LAND & BUILDING
180000
2023 / 008457
SPECIAL WARRANTY DEED
8/28/2020
LAND & BUILDING
5000
2020 / 017202
SPECIAL WARRANTY DEED
6/18/2018
LAND & BUILDING
30700
2018 / 011808
DEED
11/28/2017
LAND & BUILDING
1643
2017 / 026058
SHERIFF'S DED
5/23/2003
LAND & BUILDING
49900
1015 / 0887
FIDUCIARY DEED
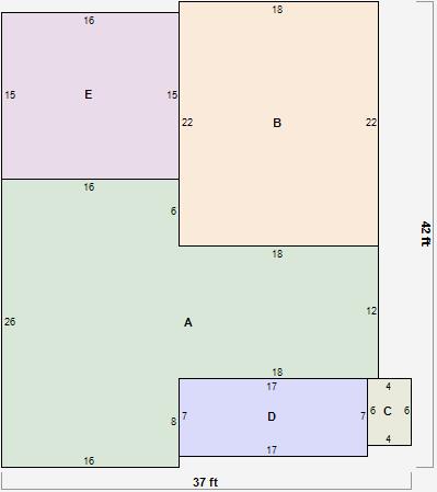
Parcel Sketches
Residential Card 1
A
MAIN
632 square feet
B
UNFIN BSMT BASEMENT UNFINISHED 1S FR ONE STORY FRAME
396 square feet
C
WDDCK WOOD DECKS
24 square feet
D
EFP ENCL FRAME PORCH
119 square feet
E
WDDCK WOOD DECKS
240 square feet
Parcel Images
Please note:
this tab is for informational purposes only and may not show all delinquencies, see the Taxes tab for more accurate delinquent taxes due.