Elected Officials
Courts
Departments
Initiatives
Open Government
About
Login / Register
Home
/
Property & Tax Records
/
Property Records
/
Property & Tax Search
/
Parcel Profile
/
Print View
Search for Another Parcel
Parcel Profile
Historical Card
Sketches
Photos
Tax Map
Taxes
Print View
Print This Page
Address: WATERFORD ST
Parcel: 42001001000101
Parcel Profile
Address
0 | WATERFORD | ST
Street Status
PAVED
School District
UNION CITY AREA SCHOOL
Acreage
1.3700
Classification
R
Land Use Code
SINGLE FAMILY
Legal Description
WATERFORD ST | 1.37 AC
Square Feet
778
Topo
LEVEL
Utility
ALL PUBLIC
Zoning
Please contact your municipal zoning officer
Deed Book
2018
Deed Page
000399
2026 Tax Values
Land Value / Taxable
17,700 / 17,700.00
Building Value / Taxable
28,500 / 28,500.00
Total Value / Taxable
46,200 / 46,200.00
Clean & Green
Inactive
Homestead Status
Inactive
Farmstead Status
Inactive
Lerta Amount
0
Lerta Expiration Year
0
Residential Data
Card 1
Style
BUNGALOW
Basement
CRAWL
Year Built
1900
Exterior Wall
FRAME
Total Living Area
778
Full Baths
1
Half Baths
0
Fuel Type
GAS
Heating
CENTRAL
Heating System
HOT WATER
Stories
1.0
Total Bedrooms
3
Total Family Rooms
0
Total Rooms
5
Fireplaces
0
Other Buildings & Yards
Description
Built
Width
Length
Area
FRAME UTILITY SHED
1990
12
12
144
1S FRAME OR METAL POULTRY HSE
1990
10
10
100
FLAT BARN
1938
34
36
1224
FLAT BARN
1949
10
36
360
CONCRETE STAVE WITH ROOF
1920
16
50
10048
ATTACHED CB MILK HOUSE
1949
20
18
360
WATER CONNECTION
1938
0
0
1
Sales History
Sale Date
Type
Price
Book / Page
Other Info
1/8/2018
LAND & BUILDING
0
2018 / 000399
DEED
11/27/1972
0
1085 / 0136
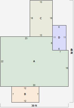
Parcel Sketches
Residential Card 1
A
MAIN
618 square feet
B
EFP ENCL FRAME PORCH
84 square feet
C
1S FR ONE STORY FRAME
160 square feet
D
EFP ENCL FRAME PORCH
66 square feet
Parcel Images
Please note:
this tab is for informational purposes only and may not show all delinquencies, see the Taxes tab for more accurate delinquent taxes due.