Elected Officials
Courts
Departments
Initiatives
Open Government
About
Login / Register
Home
/
Property & Tax Records
/
Property Records
/
Property & Tax Search
/
Parcel Profile
/
Print View
Search for Another Parcel
Parcel Profile
Historical Card
Sketches
Photos
Tax Map
Taxes
Print View
Print This Page
Address: 112 N MAIN ST
Parcel: 42002002000900
Parcel Profile
Address
112 | N | MAIN | ST
Street Status
PAVED | SIDEWALK
School District
UNION CITY AREA SCHOOL
Acreage
0.3603
Classification
R
Land Use Code
SINGLE FAMILY
Legal Description
1120N MAIN ST 72 X 218 IRR
Square Feet
1737
Topo
LEVEL
Utility
ALL PUBLIC
Zoning
Please contact your municipal zoning officer
Deed Book
2024
Deed Page
016862
2026 Tax Values
Land Value / Taxable
14,600 / 14,600.00
Building Value / Taxable
70,010 / 70,010.00
Total Value / Taxable
84,610 / 84,610.00
Clean & Green
Inactive
Homestead Status
Active
Farmstead Status
Inactive
Lerta Amount
0
Lerta Expiration Year
0
Residential Data
Card 1
Style
OLD STYLE
Basement
FULL
Year Built
1920
Exterior Wall
FRAME
Total Living Area
1737
Full Baths
1
Half Baths
1
Fuel Type
GAS
Heating
CENTRAL A/C
Heating System
FORCED AIR
Stories
2.0
Total Bedrooms
4
Total Family Rooms
0
Total Rooms
10
Fireplaces
0
Other Buildings & Yards
No OBY Data Found
Sales History
Sale Date
Type
Price
Book / Page
Other Info
10/16/2024
LAND & BUILDING
145000
2024 / 016862
SPECIAL WARRANTY DEED
11/25/2020
LAND & BUILDING
50000
2020 / 025445
SPECIAL WARRANTY DEED
3/5/2018
LAND & BUILDING
0
2018 / 004212
QUIT CLAIM DEED
11/29/2007
LAND & BUILDING
0
1463 / 0110
WARRANTY/SURVIVORSHIP DEED
6/18/2007
LAND & BUILDING
81500
1424 / 0273
SPECIAL WARRANTY DEED
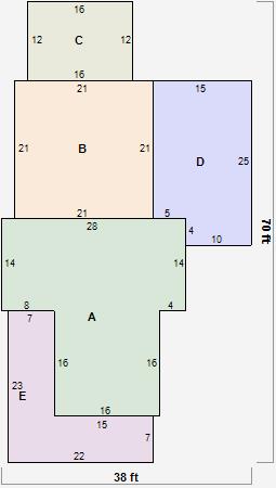
Parcel Sketches
Residential Card 1
A
MAIN
648 square feet
B
1S FR ONE STORY FRAME
441 square feet
C
WDDCK WOOD DECKS
192 square feet
D
FR GR FRAME GARAGE
355 square feet
E
OFP OPEN FRAME PORCH
266 square feet
Parcel Images
Please note:
this tab is for informational purposes only and may not show all delinquencies, see the Taxes tab for more accurate delinquent taxes due.