Elected Officials
Courts
Departments
Initiatives
Open Government
About
Login / Register
Home
/
Property & Tax Records
/
Property Records
/
Property & Tax Search
/
Parcel Profile
/
Print View
Search for Another Parcel
Parcel Profile
Historical Card
Sketches
Photos
Tax Map
Taxes
Print View
Print This Page
Address: 53 WATERFORD ST
Parcel: 42002002002900
Parcel Profile
Address
53 | WATERFORD | ST
Street Status
PAVED
School District
UNION CITY AREA SCHOOL
Acreage
0.8924
Classification
R
Land Use Code
SINGLE FAMILY
Legal Description
53 WATERFORD ST 133 X 264 IRR
Square Feet
1235
Topo
LEVEL
Utility
ALL PUBLIC
Zoning
Please contact your municipal zoning officer
Deed Book
2022
Deed Page
018881
2026 Tax Values
Land Value / Taxable
16,900 / 16,900.00
Building Value / Taxable
37,300 / 37,300.00
Total Value / Taxable
54,200 / 54,200.00
Clean & Green
Inactive
Homestead Status
Active
Farmstead Status
Inactive
Lerta Amount
0
Lerta Expiration Year
0
Residential Data
Card 1
Style
BUNGALOW
Basement
FULL
Year Built
1910
Exterior Wall
ALUMINUM/VINYL
Total Living Area
1235
Full Baths
1
Half Baths
0
Fuel Type
GAS
Heating
CENTRAL
Heating System
FORCED AIR
Stories
1.0
Total Bedrooms
2
Total Family Rooms
1
Total Rooms
6
Fireplaces
0
Other Buildings & Yards
Description
Built
Width
Length
Area
FLAT BARN
1910
24
36
864
1S LEAN TO
1980
8
12
96
FRAME UTILITY SHED
1980
12
22
264
1S LEAN TO
1980
12
8
96
Sales History
Sale Date
Type
Price
Book / Page
Other Info
8/29/2022
LAND & BUILDING
0
2022 / 018881
SPECIAL WARRANTY DEED
6/15/1995
LAND & BUILDING
45000
0388 / 0326
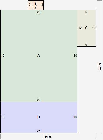
Parcel Sketches
Residential Card 1
A
MAIN
750 square feet
B
EFP ENCL FRAME PORCH
15 square feet
C
1S FR ONE STORY FRAME
72 square feet
D
EFP ENCL FRAME PORCH
250 square feet
Parcel Images
Please note:
this tab is for informational purposes only and may not show all delinquencies, see the Taxes tab for more accurate delinquent taxes due.