Elected Officials
Courts
Departments
Initiatives
Open Government
About
Login / Register
Home
/
Property & Tax Records
/
Property Records
/
Property & Tax Search
/
Parcel Profile
/
Print View
Search for Another Parcel
Parcel Profile
Historical Card
Sketches
Photos
Tax Map
Taxes
Print View
Print This Page
Address: 21 PERRY ST
Parcel: 42002003000200
Parcel Profile
Address
21 | PERRY | ST
Street Status
PAVED | SIDEWALK
School District
UNION CITY AREA SCHOOL
Acreage
0.1639
Classification
R
Land Use Code
SINGLE FAMILY
Legal Description
21 PERRY ST 50 X 148 IRR
Square Feet
1669
Topo
LEVEL
Utility
ALL PUBLIC
Zoning
Please contact your municipal zoning officer
Deed Book
1195
Deed Page
1777
2025 Tax Values
Land Value / Taxable
11,000 / 11,000.00
Building Value / Taxable
51,020 / 51,020.00
Total Value / Taxable
62,020 / 62,020.00
Clean & Green
Inactive
Homestead Status
Active
Farmstead Status
Inactive
Lerta Amount
0
Lerta Expiration Year
0
Residential Data
Card 1
Style
OLD STYLE
Basement
FULL
Year Built
1860
Exterior Wall
ALUMINUM/VINYL
Total Living Area
1669
Full Baths
1
Half Baths
0
Fuel Type
GAS
Heating
CENTRAL
Heating System
FORCED AIR
Stories
2.0
Total Bedrooms
5
Total Family Rooms
0
Total Rooms
9
Fireplaces
0
Other Buildings & Yards
Description
Built
Width
Length
Area
FRAME OR CB DETACHED GARAGE
1930
19
28
532
Sales History
Sale Date
Type
Price
Book / Page
Other Info
12/8/2004
LAND & BUILDING
55000
1195 / 1777
SPECIAL WARRANTY DEED
2/6/2003
LAND & BUILDING
0
0973 / 2089
DEED
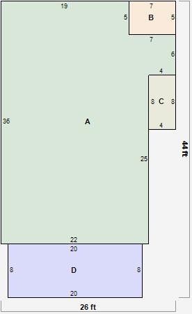
Parcel Sketches
Residential Card 1
A
MAIN
801 square feet
B
OFP OPEN FRAME PORCH 1S FR ONE STORY FRAME
35 square feet
C
1S FR ONE STORY FRAME
32 square feet
D
EFP ENCL FRAME PORCH
160 square feet
Parcel Images