Elected Officials
Courts
Departments
Initiatives
Open Government
About
Login / Register
Home
/
Property & Tax Records
/
Property Records
/
Property & Tax Search
/
Parcel Profile
/
Print View
Search for Another Parcel
Parcel Profile
Historical Card
Sketches
Photos
Tax Map
Taxes
Print View
Print This Page
Address: 77 W HIGH ST
Parcel: 42007016000600
Parcel Profile
Address
77 | W | HIGH | ST
Street Status
PAVED | SIDEWALK
School District
UNION CITY AREA SCHOOL
Acreage
0.1997
Classification
R
Land Use Code
SINGLE FAMILY
Legal Description
77 W HIGH ST 58X150
Square Feet
1950
Topo
LEVEL
Utility
ALL PUBLIC
Zoning
Please contact your municipal zoning officer
Deed Book
2023
Deed Page
020792
2026 Tax Values
Land Value / Taxable
12,900 / 12,900.00
Building Value / Taxable
67,700 / 67,700.00
Total Value / Taxable
80,600 / 80,600.00
Clean & Green
Inactive
Homestead Status
Active
Farmstead Status
Inactive
Lerta Amount
0
Lerta Expiration Year
0
Residential Data
Card 1
Style
OLD STYLE
Basement
FULL
Year Built
1900
Exterior Wall
ALUMINUM/VINYL
Total Living Area
1950
Full Baths
1
Half Baths
1
Fuel Type
GAS
Heating
CENTRAL
Heating System
HOT WATER
Stories
2.0
Total Bedrooms
3
Total Family Rooms
0
Total Rooms
5
Fireplaces
0
Other Buildings & Yards
Description
Built
Width
Length
Area
FRAME OR CB DETACHED GARAGE
1930
12
16
192
Sales History
Sale Date
Type
Price
Book / Page
Other Info
11/30/2023
LAND & BUILDING
110000
2023 / 020792
SPECIAL WARRANTY DEED
8/20/2014
LAND & BUILDING
0
2014 / 017465
SPECIAL WARRANTY DEED
9/11/1997
LAND & BUILDING
60000
518 / 1158
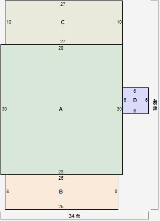
Parcel Sketches
Residential Card 1
A
MAIN
840 square feet
B
OFP OPEN FRAME PORCH
208 square feet
C
1S FR ONE STORY FRAME
270 square feet
D
OFP OPEN FRAME PORCH
36 square feet
Parcel Images
Please note:
this tab is for informational purposes only and may not show all delinquencies, see the Taxes tab for more accurate delinquent taxes due.