Elected Officials
Courts
Departments
Initiatives
Open Government
About
Login / Register
Home
/
Property & Tax Records
/
Property Records
/
Property & Tax Search
/
Parcel Profile
/
Print View
Search for Another Parcel
Parcel Profile
Historical Card
Sketches
Photos
Tax Map
Taxes
Print View
Print This Page
Address: 13 SOUTH ST
Parcel: 42007024001200
Parcel Profile
Address
13 | SOUTH | ST
Street Status
PAVED | SIDEWALK
School District
UNION CITY AREA SCHOOL
Acreage
0.1736
Classification
R
Land Use Code
THREE FAMILY
Legal Description
13 S ST 60X126
Square Feet
3258
Topo
LEVEL
Utility
ALL PUBLIC
Zoning
Please contact your municipal zoning officer
Deed Book
0687
Deed Page
0810
2026 Tax Values
Land Value / Taxable
12,400 / 12,400.00
Building Value / Taxable
94,800 / 94,800.00
Total Value / Taxable
107,200 / 107,200.00
Clean & Green
Inactive
Homestead Status
Inactive
Farmstead Status
Inactive
Lerta Amount
0
Lerta Expiration Year
0
Residential Data
Card 1
Style
CONVENTIONAL
Basement
FULL
Year Built
1910
Exterior Wall
ALUMINUM/VINYL
Total Living Area
3258
Full Baths
3
Half Baths
0
Fuel Type
GAS
Heating
CENTRAL
Heating System
FORCED AIR
Stories
2.0
Total Bedrooms
6
Total Family Rooms
0
Total Rooms
13
Fireplaces
0
Other Buildings & Yards
No OBY Data Found
Sales History
Sale Date
Type
Price
Book / Page
Other Info
2/11/2000
0
0687 / 0810
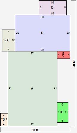
Parcel Sketches
Residential Card 1
A
MAIN
1107 square feet
B
OFP OPEN FRAME PORCH
28 square feet
C
1S FR ONE STORY FRAME
84 square feet
D
UNFIN BSMT BASEMENT UNFINISHED 1S FR ONE STORY FRAME AT FN ATTIC-FINISHED
600 square feet
E
UNFIN BSMT BASEMENT UNFINISHED 1S FR ONE STORY FRAME
120 square feet
F
OFP OPEN FRAME PORCH
28 square feet
G
EMP ENCL MASONRY PORCH
66 square feet
Parcel Images
Please note:
this tab is for informational purposes only and may not show all delinquencies, see the Taxes tab for more accurate delinquent taxes due.