Elected Officials
Courts
Departments
Initiatives
Open Government
About
Login / Register
Home
/
Property & Tax Records
/
Property Records
/
Property & Tax Search
/
Parcel Profile
/
Print View
Search for Another Parcel
Parcel Profile
Historical Card
Sketches
Photos
Tax Map
Taxes
Print View
Print This Page
Address: 40 W HIGH ST
Parcel: 42007025000600
Parcel Profile
Address
40 | W | HIGH | ST
Street Status
PAVED | SIDEWALK
School District
UNION CITY AREA SCHOOL
Acreage
0.2810
Classification
R
Land Use Code
SINGLE FAMILY
Legal Description
40 W HIGH ST 51X240
Square Feet
1305
Topo
LEVEL
Utility
ALL PUBLIC
Zoning
Please contact your municipal zoning officer
Deed Book
0422
Deed Page
1283
2026 Tax Values
Land Value / Taxable
14,000 / 14,000.00
Building Value / Taxable
54,400 / 54,400.00
Total Value / Taxable
68,400 / 68,400.00
Clean & Green
Inactive
Homestead Status
Active
Farmstead Status
Inactive
Lerta Amount
0
Lerta Expiration Year
0
Residential Data
Card 1
Style
BUNGALOW
Basement
FULL
Year Built
1865
Exterior Wall
COMPOSITION
Total Living Area
1305
Full Baths
1
Half Baths
0
Fuel Type
GAS
Heating
CENTRAL
Heating System
HOT WATER
Stories
1.0
Total Bedrooms
2
Total Family Rooms
0
Total Rooms
7
Fireplaces
0
Other Buildings & Yards
Description
Built
Width
Length
Area
FRAME OR CB DETACHED GARAGE
1994
24
32
768
Sales History
Sale Date
Type
Price
Book / Page
Other Info
1/31/1996
0
0422 / 1283
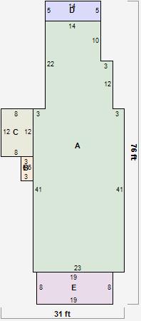
Parcel Sketches
Residential Card 1
A
MAIN
1287 square feet
B
FRBAY FRAME BAY
18 square feet
C
OFP OPEN FRAME PORCH
96 square feet
D
OFP OPEN FRAME PORCH
70 square feet
E
OFP OPEN FRAME PORCH
152 square feet
Parcel Images
Please note:
this tab is for informational purposes only and may not show all delinquencies, see the Taxes tab for more accurate delinquent taxes due.