Elected Officials
Courts
Departments
Initiatives
Open Government
About
Login / Register
Home
/
Property & Tax Records
/
Property Records
/
Property & Tax Search
/
Parcel Profile
/
Print View
Search for Another Parcel
Parcel Profile
Historical Card
Sketches
Photos
Tax Map
Taxes
Print View
Print This Page
Address: 33 SOUTH ST
Parcel: 42007025002000
Parcel Profile
Address
33 | SOUTH | ST
Street Status
PAVED | SIDEWALK
School District
UNION CITY AREA SCHOOL
Acreage
0.2388
Classification
R
Land Use Code
SINGLE FAMILY
Legal Description
33 SOUTH STREET 80X130
Square Feet
2824
Topo
LEVEL
Utility
ALL PUBLIC
Zoning
Please contact your municipal zoning officer
Deed Book
1300
Deed Page
0212
2026 Tax Values
Land Value / Taxable
13,600 / 13,600.00
Building Value / Taxable
76,000 / 76,000.00
Total Value / Taxable
89,600 / 89,600.00
Clean & Green
Inactive
Homestead Status
Active
Farmstead Status
Inactive
Lerta Amount
0
Lerta Expiration Year
0
Residential Data
Card 1
Style
OLD STYLE
Basement
FULL
Year Built
1890
Exterior Wall
COMPOSITION
Total Living Area
2824
Full Baths
1
Half Baths
2
Fuel Type
GAS
Heating
CENTRAL
Heating System
HOT WATER
Stories
2.0
Total Bedrooms
3
Total Family Rooms
0
Total Rooms
11
Fireplaces
0
Other Buildings & Yards
Description
Built
Width
Length
Area
FRAME OR CB DETACHED GARAGE
1920
20
22
440
Sales History
Sale Date
Type
Price
Book / Page
Other Info
4/5/1978
0
1300 / 0212
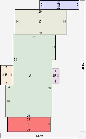
Parcel Sketches
Residential Card 1
A
MAIN
1112 square feet
B
OFP OPEN FRAME PORCH
77 square feet
C
UNFIN BSMT BASEMENT UNFINISHED 1S FR ONE STORY FRAME AT FN ATTIC-FINISHED
406 square feet
D
FR UT FRAME UTILITY BUILDING
110 square feet
E
UNFIN BSMT BASEMENT UNFINISHED FRBAY FRAME BAY
32 square feet
F
OFP OPEN FRAME PORCH
192 square feet
Parcel Images
Please note:
this tab is for informational purposes only and may not show all delinquencies, see the Taxes tab for more accurate delinquent taxes due.