Elected Officials
Courts
Departments
Initiatives
Open Government
About
Login / Register
Home
/
Property & Tax Records
/
Property Records
/
Property & Tax Search
/
Parcel Profile
/
Print View
Search for Another Parcel
Parcel Profile
Historical Card
Sketches
Photos
Tax Map
Taxes
Print View
Print This Page
Address: 33 33 1/2 THIRD AVE
Parcel: 42007025002100
Parcel Profile
Address
33 | 33 1/2 | THIRD | AVE
Street Status
PAVED | SIDEWALK
School District
UNION CITY AREA SCHOOL
Acreage
0.1800
Classification
R
Land Use Code
TWO FAMILY
Legal Description
33 - 33 1/2 THIRD AVE 56 X 140
Square Feet
2299
Topo
LEVEL
Utility
ALL PUBLIC
Zoning
Please contact your municipal zoning officer
Deed Book
1064
Deed Page
1443
2026 Tax Values
Land Value / Taxable
12,600 / 12,600.00
Building Value / Taxable
61,320 / 61,320.00
Total Value / Taxable
73,920 / 73,920.00
Clean & Green
Inactive
Homestead Status
Inactive
Farmstead Status
Inactive
Lerta Amount
0
Lerta Expiration Year
0
Residential Data
Card 1
Style
OLD STYLE
Basement
PART
Year Built
1948
Exterior Wall
ALUMINUM/VINYL
Total Living Area
2299
Full Baths
2
Half Baths
0
Fuel Type
GAS
Heating
CENTRAL
Heating System
FORCED AIR
Stories
1.5
Total Bedrooms
3
Total Family Rooms
2
Total Rooms
9
Fireplaces
0
Other Buildings & Yards
Description
Built
Width
Length
Area
FRAME OR CB DETACHED GARAGE
1920
14
22
308
FRAME UTILITY SHED
1980
14
14
196
Sales History
Sale Date
Type
Price
Book / Page
Other Info
9/16/2003
LAND & BUILDING
0
1064 / 1443
QUIT CLAIM DEED
5/6/1991
0
0158 / 2394
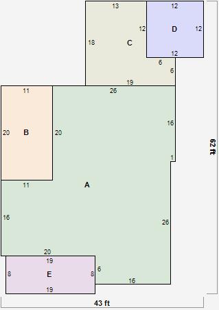
Parcel Sketches
Residential Card 1
A
MAIN
1188 square feet
B
1S FR ONE STORY FRAME
220 square feet
C
FR UT FRAME UTILITY BUILDING
270 square feet
D
WDDCK WOOD DECKS
144 square feet
E
EFP ENCL FRAME PORCH
152 square feet
Parcel Images
Please note:
this tab is for informational purposes only and may not show all delinquencies, see the Taxes tab for more accurate delinquent taxes due.