Elected Officials
Courts
Departments
Initiatives
Open Government
About
Login / Register
Home
/
Property & Tax Records
/
Property Records
/
Property & Tax Search
/
Parcel Profile
/
Print View
Search for Another Parcel
Parcel Profile
Historical Card
Sketches
Photos
Tax Map
Taxes
Print View
Print This Page
Address: 22 THIRD AVE
Parcel: 42007026000600
Parcel Profile
Address
22 | THIRD | AVE
Street Status
PAVED | SIDEWALK
School District
UNION CITY AREA SCHOOL
Acreage
0.1153
Classification
R
Land Use Code
SINGLE FAMILY
Legal Description
22 THIRD AVENUE 62X81
Square Feet
1674
Topo
LEVEL
Utility
ALL PUBLIC
Zoning
Please contact your municipal zoning officer
Deed Book
2019
Deed Page
002210
2026 Tax Values
Land Value / Taxable
11,400 / 11,400.00
Building Value / Taxable
65,900 / 65,900.00
Total Value / Taxable
77,300 / 77,300.00
Clean & Green
Inactive
Homestead Status
Active
Farmstead Status
Inactive
Lerta Amount
0
Lerta Expiration Year
0
Residential Data
Card 1
Style
OLD STYLE
Basement
FULL
Year Built
1910
Exterior Wall
ALUMINUM/VINYL
Total Living Area
1674
Full Baths
1
Half Baths
0
Fuel Type
GAS
Heating
CENTRAL
Heating System
HOT WATER
Stories
2.0
Total Bedrooms
4
Total Family Rooms
0
Total Rooms
10
Fireplaces
0
Other Buildings & Yards
Description
Built
Width
Length
Area
ONE SIDE OPEN MTL POLE BLDG
2013
18
32
576
Sales History
Sale Date
Type
Price
Book / Page
Other Info
2/8/2019
LAND & BUILDING
106000
2019 / 002210
SPECIAL WARRANTY DEED
4/9/2002
LAND & BUILDING
0
869 / 1442
AFFIDAVIT
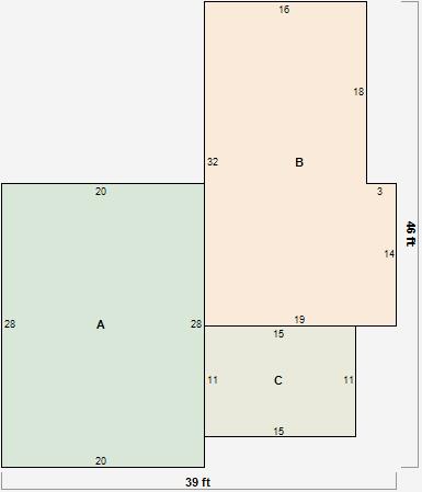
Parcel Sketches
Residential Card 1
A
MAIN
560 square feet
B
UNFIN BSMT BASEMENT UNFINISHED 1S FR ONE STORY FRAME
554 square feet
C
OFP OPEN FRAME PORCH
165 square feet
Parcel Images
Please note:
this tab is for informational purposes only and may not show all delinquencies, see the Taxes tab for more accurate delinquent taxes due.