Elected Officials
Courts
Departments
Initiatives
Open Government
About
Login / Register
Home
/
Property & Tax Records
/
Property Records
/
Property & Tax Search
/
Parcel Profile
/
Print View
Search for Another Parcel
Parcel Profile
Historical Card
Sketches
Photos
Tax Map
Taxes
Print View
Print This Page
Address: 14 HUNTER AVE
Parcel: 42009028002100
Parcel Profile
Address
14 | HUNTER | AVE
Street Status
UNPAVED
School District
UNION CITY AREA SCHOOL
Acreage
0.5374
Classification
R
Land Use Code
SINGLE FAMILY
Legal Description
14 HUNTER AVE 104.5 X 235.33
Square Feet
1210
Topo
LEVEL
Utility
ALL PUBLIC
Zoning
Please contact your municipal zoning officer
Deed Book
1213
Deed Page
2261
2025 Tax Values
Land Value / Taxable
16,000 / 16,000.00
Building Value / Taxable
79,800 / 79,800.00
Total Value / Taxable
95,800 / 95,800.00
Clean & Green
Inactive
Homestead Status
Active
Farmstead Status
Inactive
Lerta Amount
0
Lerta Expiration Year
0
Residential Data
Card 1
Style
CAPE
Basement
NONE
Year Built
1995
Exterior Wall
ALUMINUM/VINYL
Total Living Area
1210
Full Baths
1
Half Baths
0
Fuel Type
GAS
Heating
CENTRAL
Heating System
FORCED AIR
Stories
1.0
Total Bedrooms
3
Total Family Rooms
0
Total Rooms
5
Fireplaces
0
Other Buildings & Yards
Description
Built
Width
Length
Area
FRAME OR CB DETACHED GARAGE
1995
24
24
576
Sales History
Sale Date
Type
Price
Book / Page
Other Info
3/1/2005
LAND & BUILDING
75000
1213 / 2261
WARRANTY/SURVIVORSHIP DEED
4/22/1977
0
1260 / 0429
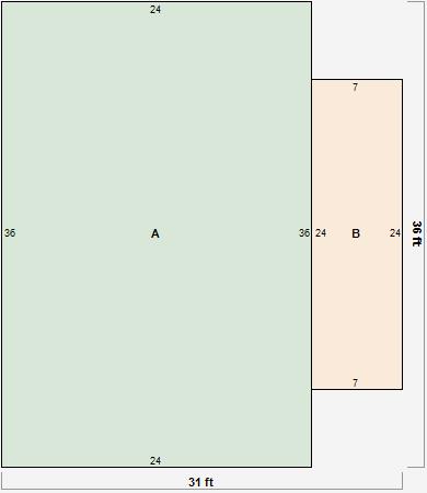
Parcel Sketches
Residential Card 1
A
MAIN
864 square feet
B
OFP OPEN FRAME PORCH
168 square feet
Parcel Images