Elected Officials
Courts
Departments
Initiatives
Open Government
About
Login / Register
Home
/
Property & Tax Records
/
Property Records
/
Property & Tax Search
/
Parcel Profile
/
Print View
Search for Another Parcel
Parcel Profile
Historical Card
Sketches
Photos
Tax Map
Taxes
Print View
Print This Page
Address: 23 ATLANTIC AVE
Parcel: 42009033001500
Parcel Profile
Address
23 | ATLANTIC | AVE
Street Status
PAVED | SIDEWALK
School District
UNION CITY AREA SCHOOL
Acreage
0.2008
Classification
R
Land Use Code
SINGLE FAMILY
Legal Description
23 ATLANTIC AVENUE 54X162 IRR
Square Feet
1804
Topo
ROLLING
Utility
ALL PUBLIC
Zoning
Please contact your municipal zoning officer
Deed Book
2020
Deed Page
004053
2025 Tax Values
Land Value / Taxable
12,900 / 12,900.00
Building Value / Taxable
45,560 / 45,560.00
Total Value / Taxable
58,460 / 58,460.00
Clean & Green
Inactive
Homestead Status
Inactive
Farmstead Status
Inactive
Lerta Amount
0
Lerta Expiration Year
0
Residential Data
Card 1
Style
OLD STYLE
Basement
NONE
Year Built
1900
Exterior Wall
ALUMINUM/VINYL
Total Living Area
1804
Full Baths
1
Half Baths
0
Fuel Type
GAS
Heating
CENTRAL
Heating System
HOT WATER
Stories
1.5
Total Bedrooms
4
Total Family Rooms
0
Total Rooms
7
Fireplaces
0
Other Buildings & Yards
No OBY Data Found
Sales History
Sale Date
Type
Price
Book / Page
Other Info
3/2/2020
LAND & BUILDING
11000
2020 / 004053
SPECIAL WARRANTY DEED
10/31/2011
LAND & BUILDING
0
2011 / 025895
WARRANTY/SURVIVORSHIP DEED
9/21/2011
LAND & BUILDING
24000
2011 / 022333
FIDUCIARY DEED
Parcel Sketches
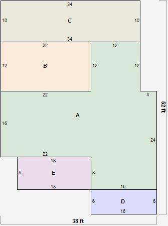
Residential Card 1
A
MAIN
880 square feet
B
UNFIN BSMT BASEMENT UNFINISHED 1S FR ONE STORY FRAME
264 square feet
C
OFP OPEN FRAME PORCH
340 square feet
D
EFP ENCL FRAME PORCH
96 square feet
E
EFP ENCL FRAME PORCH
144 square feet
Parcel Images