Elected Officials
Courts
Departments
Initiatives
Open Government
About
Login / Register
Home
/
Property & Tax Records
/
Property Records
/
Property & Tax Search
/
Parcel Profile
/
Print View
Search for Another Parcel
Parcel Profile
Historical Card
Sketches
Photos
Tax Map
Taxes
Print View
Print This Page
Address: 4 CENTER ST
Parcel: 42015073000400
Parcel Profile
Address
4 | CENTER | ST
Street Status
PAVED
School District
UNION CITY AREA SCHOOL
Acreage
0.1815
Classification
R
Land Use Code
TWO FAMILY
Legal Description
4 CENTER ST 51X155
Square Feet
1152
Topo
LEVEL
Utility
ALL PUBLIC
Zoning
Please contact your municipal zoning officer
Deed Book
2014
Deed Page
003430
2025 Tax Values
Land Value / Taxable
12,600 / 12,600.00
Building Value / Taxable
28,410 / 28,410.00
Total Value / Taxable
41,010 / 41,010.00
Clean & Green
Inactive
Homestead Status
Inactive
Farmstead Status
Inactive
Lerta Amount
0
Lerta Expiration Year
0
Residential Data
Card 1
Style
OLD STYLE
Basement
PART
Year Built
1910
Exterior Wall
ALUMINUM/VINYL
Total Living Area
1152
Full Baths
1
Half Baths
1
Fuel Type
GAS
Heating
CENTRAL
Heating System
FORCED AIR
Stories
2.0
Total Bedrooms
4
Total Family Rooms
0
Total Rooms
7
Fireplaces
0
Other Buildings & Yards
No OBY Data Found
Sales History
Sale Date
Type
Price
Book / Page
Other Info
2/25/2014
LAND & BUILDING
10000
2014 / 003430
WARRANTY/SURVIVORSHIP DEED
3/5/2012
LAND & BUILDING
0
2012 / 005516
TAX DEED
10/17/1996
LAND & BUILDING
29000
467 / 78
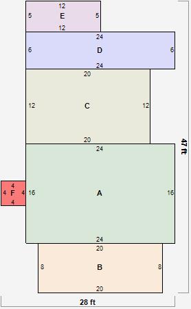
Parcel Sketches
Residential Card 1
A
MAIN
384 square feet
B
OFP OPEN FRAME PORCH
160 square feet
C
1S FR ONE STORY FRAME
240 square feet
D
1S FR ONE STORY FRAME
144 square feet
E
FR UT FRAME UTILITY BUILDING
60 square feet
F
WDDCK WOOD DECKS
16 square feet
Parcel Images