Elected Officials
Courts
Departments
Initiatives
Open Government
About
Login / Register
Home
/
Property & Tax Records
/
Property Records
/
Property & Tax Search
/
Parcel Profile
/
Print View
Search for Another Parcel
Parcel Profile
Historical Card
Sketches
Photos
Tax Map
Taxes
Print View
Print This Page
Address: 20 CENTER ST
Parcel: 42015073001100
Parcel Profile
Address
20 | CENTER | ST
Street Status
PAVED | SIDEWALK
School District
UNION CITY AREA SCHOOL
Acreage
0.2194
Classification
R
Land Use Code
TWO FAMILY
Legal Description
20 CENTER ST 59 X 162
Square Feet
1824
Topo
LEVEL
Utility
ALL PUBLIC
Zoning
Please contact your municipal zoning officer
Deed Book
2018
Deed Page
006305
2026 Tax Values
Land Value / Taxable
13,300 / 13,300.00
Building Value / Taxable
64,300 / 64,300.00
Total Value / Taxable
77,600 / 77,600.00
Clean & Green
Inactive
Homestead Status
Active
Farmstead Status
Inactive
Lerta Amount
0
Lerta Expiration Year
0
Residential Data
Card 1
Style
OLD STYLE
Basement
PART
Year Built
1900
Exterior Wall
ALUMINUM/VINYL
Total Living Area
1824
Full Baths
2
Half Baths
0
Fuel Type
GAS
Heating
CENTRAL
Heating System
FORCED AIR
Stories
2.0
Total Bedrooms
4
Total Family Rooms
0
Total Rooms
8
Fireplaces
0
Other Buildings & Yards
No OBY Data Found
Sales History
Sale Date
Type
Price
Book / Page
Other Info
4/6/2018
LAND & BUILDING
49000
2018 / 006305
SPECIAL WARRANTY DEED
3/2/2004
LAND & BUILDING
51000
1112 / 0395
WARRANTY/SURVIVORSHIP DEED
5/2/2002
LAND & BUILDING
0
876 / 1658
QUIT/CLAIM SURVIVORSHIP
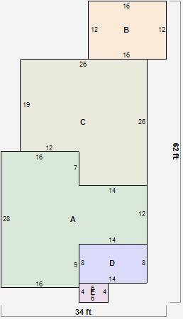
Parcel Sketches
Residential Card 1
A
MAIN
616 square feet
B
WDDCK WOOD DECKS
192 square feet
C
UNFIN BSMT BASEMENT UNFINISHED 1S FR ONE STORY FRAME
592 square feet
D
EFP ENCL FRAME PORCH
112 square feet
E
WDDCK WOOD DECKS
24 square feet
Parcel Images
Please note:
this tab is for informational purposes only and may not show all delinquencies, see the Taxes tab for more accurate delinquent taxes due.