Elected Officials
Courts
Departments
Initiatives
Open Government
About
Login / Register
Home
/
Property & Tax Records
/
Property Records
/
Property & Tax Search
/
Parcel Profile
/
Print View
Search for Another Parcel
Parcel Profile
Historical Card
Sketches
Photos
Tax Map
Taxes
Print View
Print This Page
Address: 21 CHERRY ST
Parcel: 42015073001900
Parcel Profile
Address
21 | CHERRY | ST
Street Status
PAVED
School District
UNION CITY AREA SCHOOL
Acreage
0.1584
Classification
R
Land Use Code
SINGLE FAMILY
Legal Description
21 CHERRY ST 46 X 150
Square Feet
896
Topo
LEVEL
Utility
ALL PUBLIC
Zoning
Please contact your municipal zoning officer
Deed Book
1052
Deed Page
2080
2025 Tax Values
Land Value / Taxable
12,200 / 12,200.00
Building Value / Taxable
34,690 / 34,690.00
Total Value / Taxable
46,890 / 46,890.00
Clean & Green
Inactive
Homestead Status
Active
Farmstead Status
Inactive
Lerta Amount
0
Lerta Expiration Year
0
Residential Data
Card 1
Style
OLD STYLE
Basement
FULL
Year Built
1920
Exterior Wall
ALUMINUM/VINYL
Total Living Area
896
Full Baths
1
Half Baths
0
Fuel Type
GAS
Heating
CENTRAL
Heating System
FORCED AIR
Stories
1.5
Total Bedrooms
3
Total Family Rooms
0
Total Rooms
6
Fireplaces
0
Other Buildings & Yards
No OBY Data Found
Sales History
Sale Date
Type
Price
Book / Page
Other Info
8/19/2003
LAND & BUILDING
24900
1052 / 2080
SHERIFF'S DED
12/28/1993
0
0311 / 2092
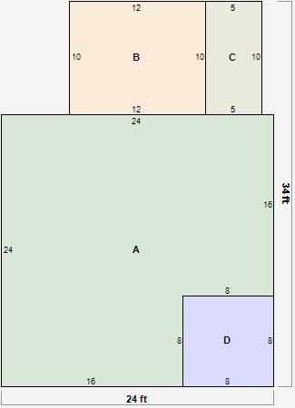
Parcel Sketches
Residential Card 1
A
MAIN
512 square feet
B
EFP ENCL FRAME PORCH
120 square feet
C
OFP OPEN FRAME PORCH
50 square feet
D
OFP OPEN FRAME PORCH
64 square feet
Parcel Images