Elected Officials
Courts
Departments
Initiatives
Open Government
About
Login / Register
Home
/
Property & Tax Records
/
Property Records
/
Property & Tax Search
/
Parcel Profile
/
Print View
Search for Another Parcel
Parcel Profile
Historical Card
Sketches
Photos
Tax Map
Taxes
Print View
Print This Page
Address: 17 CHERRY ST
Parcel: 42015073002100
Parcel Profile
Address
17 | CHERRY | ST
Street Status
PAVED
School District
UNION CITY AREA SCHOOL
Acreage
0.1584
Classification
R
Land Use Code
SINGLE FAMILY
Legal Description
17 CHERRY ST 46X150
Square Feet
1316
Topo
LEVEL
Utility
ALL PUBLIC
Zoning
Please contact your municipal zoning officer
Deed Book
0568
Deed Page
1092
2026 Tax Values
Land Value / Taxable
12,200 / 12,200.00
Building Value / Taxable
37,700 / 37,700.00
Total Value / Taxable
49,900 / 49,900.00
Clean & Green
Inactive
Homestead Status
Inactive
Farmstead Status
Inactive
Lerta Amount
0
Lerta Expiration Year
0
Residential Data
Card 1
Style
OLD STYLE
Basement
PART
Year Built
1920
Exterior Wall
ALUMINUM/VINYL
Total Living Area
1316
Full Baths
1
Half Baths
0
Fuel Type
GAS
Heating
CENTRAL
Heating System
FORCED AIR
Stories
1.5
Total Bedrooms
3
Total Family Rooms
0
Total Rooms
6
Fireplaces
0
Other Buildings & Yards
Description
Built
Width
Length
Area
FRAME OR CB DETACHED GARAGE
1945
14
25
350
Sales History
Sale Date
Type
Price
Book / Page
Other Info
6/11/1998
LAND & BUILDING
21000
0568 / 1092
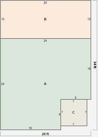
Parcel Sketches
Residential Card 1
A
MAIN
512 square feet
B
1S FR ONE STORY FRAME 1/2FR FRAME HALF-STORY
240 square feet
C
OFP OPEN FRAME PORCH
49 square feet
Parcel Images
Please note:
this tab is for informational purposes only and may not show all delinquencies, see the Taxes tab for more accurate delinquent taxes due.