Elected Officials
Courts
Departments
Initiatives
Open Government
About
Login / Register
Home
/
Property & Tax Records
/
Property Records
/
Property & Tax Search
/
Parcel Profile
/
Print View
Search for Another Parcel
Parcel Profile
Historical Card
Sketches
Photos
Tax Map
Taxes
Print View
Print This Page
Address: 24 CHERRY ST
Parcel: 42015074001000
Parcel Profile
Address
24 | CHERRY | ST
Street Status
PAVED
School District
UNION CITY AREA SCHOOL
Acreage
0.1118
Classification
R
Land Use Code
SINGLE FAMILY
Legal Description
24 CHERRY ST 40X145 IRR
Square Feet
1120
Topo
ABOVE STREET
Utility
ALL PUBLIC
Zoning
Please contact your municipal zoning officer
Deed Book
2024
Deed Page
003821
2026 Tax Values
Land Value / Taxable
11,300 / 11,300.00
Building Value / Taxable
42,000 / 42,000.00
Total Value / Taxable
53,300 / 53,300.00
Clean & Green
Inactive
Homestead Status
Inactive
Farmstead Status
Inactive
Lerta Amount
0
Lerta Expiration Year
0
Residential Data
Card 1
Style
OLD STYLE
Basement
FULL
Year Built
1925
Exterior Wall
ALUMINUM/VINYL
Total Living Area
1120
Full Baths
1
Half Baths
1
Fuel Type
GAS
Heating
CENTRAL
Heating System
FORCED AIR
Stories
2.0
Total Bedrooms
3
Total Family Rooms
0
Total Rooms
6
Fireplaces
0
Other Buildings & Yards
No OBY Data Found
Sales History
Sale Date
Type
Price
Book / Page
Other Info
3/14/2024
LAND & BUILDING
19900
2024 / 003821
SPECIAL WARRANTY DEED
4/3/2017
LAND & BUILDING
4200
2017 / 006718
DEED
11/14/2016
LAND & BUILDING
1456
2016 / 024734
SHERIFF'S DED
12/5/1997
LAND & BUILDING
38000
532 / 2146
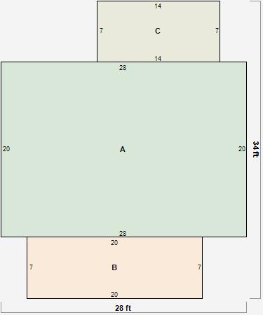
Parcel Sketches
Residential Card 1
A
MAIN
560 square feet
B
OFP OPEN FRAME PORCH
140 square feet
C
EFP ENCL FRAME PORCH
98 square feet
Parcel Images
Please note:
this tab is for informational purposes only and may not show all delinquencies, see the Taxes tab for more accurate delinquent taxes due.