Elected Officials
Courts
Departments
Initiatives
Open Government
About
Login / Register
Home
/
Property & Tax Records
/
Property Records
/
Property & Tax Search
/
Parcel Profile
/
Print View
Search for Another Parcel
Parcel Profile
Historical Card
Sketches
Photos
Tax Map
Taxes
Print View
Print This Page
Address: 20 WASHINGTON ST
Parcel: 42015076000200
Parcel Profile
Address
20 | WASHINGTON | ST
Street Status
PAVED | SIDEWALK
School District
UNION CITY AREA SCHOOL
Acreage
0.1894
Classification
R
Land Use Code
SINGLE FAMILY
Legal Description
20 WASHINGTON ST 100 X 82.5
Square Feet
1904
Topo
LEVEL
Utility
ALL PUBLIC
Zoning
Please contact your municipal zoning officer
Deed Book
2015
Deed Page
027581
2025 Tax Values
Land Value / Taxable
12,700 / 12,700.00
Building Value / Taxable
57,500 / 57,500.00
Total Value / Taxable
70,200 / 70,200.00
Clean & Green
Inactive
Homestead Status
Active
Farmstead Status
Inactive
Lerta Amount
0
Lerta Expiration Year
0
Residential Data
Card 1
Style
OLD STYLE
Basement
PART
Year Built
1907
Exterior Wall
ALUMINUM/VINYL
Total Living Area
1904
Full Baths
2
Half Baths
0
Fuel Type
GAS
Heating
CENTRAL
Heating System
FORCED AIR
Stories
2.0
Total Bedrooms
5
Total Family Rooms
0
Total Rooms
8
Fireplaces
0
Other Buildings & Yards
Description
Built
Width
Length
Area
FOUR SIDE CLOSED MTL POLE BLDG
2019
18
25
450
Sales History
Sale Date
Type
Price
Book / Page
Other Info
12/17/2015
LAND & BUILDING
63000
2015 / 027581
DEED
10/30/2006
LAND & BUILDING
13300
1372 / 0557
DEED
5/11/2006
LAND & BUILDING
2188
1326 / 2245
SHERIFF'S DED
9/29/1999
LAND & BUILDING
52000
665 / 261
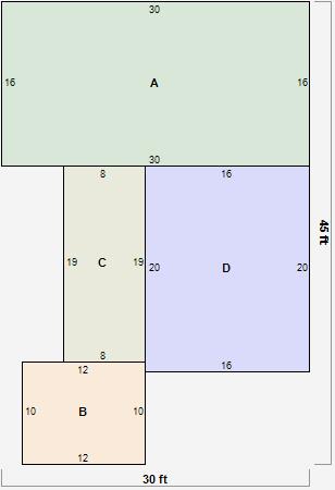
Parcel Sketches
Residential Card 1
A
MAIN
480 square feet
B
OFP OPEN FRAME PORCH
120 square feet
C
UNFIN BSMT BASEMENT UNFINISHED 1S FR ONE STORY FRAME 1S FR ONE STORY FRAME
152 square feet
D
UNFIN BSMT BASEMENT UNFINISHED 1S FR ONE STORY FRAME 1S FR ONE STORY FRAME
320 square feet
Parcel Images