Elected Officials
Courts
Departments
Initiatives
Open Government
About
Login / Register
Home
/
Property & Tax Records
/
Property Records
/
Property & Tax Search
/
Parcel Profile
/
Print View
Search for Another Parcel
Parcel Profile
Historical Card
Sketches
Photos
Tax Map
Taxes
Print View
Print This Page
Address: 26 WASHINGTON ST
Parcel: 42015076000400
Parcel Profile
Address
26 | WASHINGTON | ST
Street Status
PAVED | SIDEWALK
School District
UNION CITY AREA SCHOOL
Acreage
0.1212
Classification
R
Land Use Code
SINGLE FAMILY
Legal Description
26 WASHINGTON ST 66X80
Square Feet
1368
Topo
LEVEL
Utility
ALL PUBLIC
Zoning
Please contact your municipal zoning officer
Deed Book
0775
Deed Page
1535
2026 Tax Values
Land Value / Taxable
11,500 / 11,500.00
Building Value / Taxable
43,400 / 43,400.00
Total Value / Taxable
54,900 / 54,900.00
Clean & Green
Inactive
Homestead Status
Active
Farmstead Status
Inactive
Lerta Amount
0
Lerta Expiration Year
0
Residential Data
Card 1
Style
OLD STYLE
Basement
FULL
Year Built
1910
Exterior Wall
FRAME
Total Living Area
1368
Full Baths
1
Half Baths
0
Fuel Type
GAS
Heating
CENTRAL
Heating System
FORCED AIR
Stories
2.0
Total Bedrooms
3
Total Family Rooms
0
Total Rooms
6
Fireplaces
0
Other Buildings & Yards
No OBY Data Found
Sales History
Sale Date
Type
Price
Book / Page
Other Info
5/18/2001
LAND & BUILDING
49500
0775 / 1535
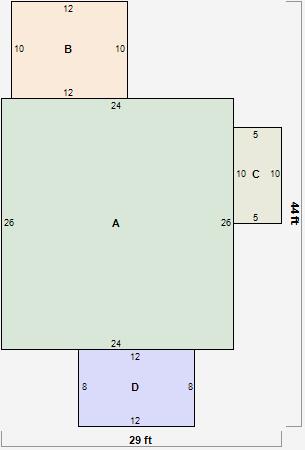
Parcel Sketches
Residential Card 1
A
MAIN
624 square feet
B
UNFIN BSMT BASEMENT UNFINISHED 1S FR ONE STORY FRAME
120 square feet
C
EFP ENCL FRAME PORCH
50 square feet
D
OFP OPEN FRAME PORCH
96 square feet
Parcel Images
Please note:
this tab is for informational purposes only and may not show all delinquencies, see the Taxes tab for more accurate delinquent taxes due.