Elected Officials
Courts
Departments
Initiatives
Open Government
About
Login / Register
Home
/
Property & Tax Records
/
Property Records
/
Property & Tax Search
/
Parcel Profile
/
Print View
Search for Another Parcel
Parcel Profile
Historical Card
Sketches
Photos
Tax Map
Taxes
Print View
Print This Page
Address: 8 HAZEN ST
Parcel: 42015078002200
Parcel Profile
Address
8 | HAZEN | ST
Street Status
PAVED | SIDEWALK
School District
UNION CITY AREA SCHOOL
Acreage
0.2197
Classification
R
Land Use Code
SINGLE FAMILY
Legal Description
8 HAZEN ST 58X165
Square Feet
1248
Topo
LEVEL
Utility
ALL PUBLIC
Zoning
Please contact your municipal zoning officer
Deed Book
0667
Deed Page
0310
2026 Tax Values
Land Value / Taxable
13,300 / 13,300.00
Building Value / Taxable
42,670 / 42,670.00
Total Value / Taxable
55,970 / 55,970.00
Clean & Green
Inactive
Homestead Status
Inactive
Farmstead Status
Inactive
Lerta Amount
0
Lerta Expiration Year
0
Residential Data
Card 1
Style
OLD STYLE
Basement
FULL
Year Built
1900
Exterior Wall
FRAME
Total Living Area
1248
Full Baths
1
Half Baths
1
Fuel Type
GAS
Heating
CENTRAL
Heating System
FORCED AIR
Stories
2.0
Total Bedrooms
3
Total Family Rooms
0
Total Rooms
6
Fireplaces
0
Other Buildings & Yards
Description
Built
Width
Length
Area
FRAME UTILITY SHED
1989
10
16
160
Sales History
Sale Date
Type
Price
Book / Page
Other Info
12/1/1953
0
0667 / 0310
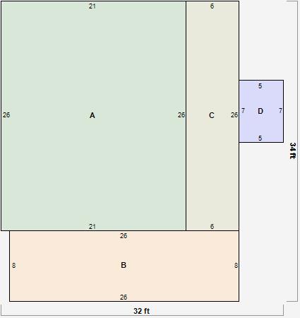
Parcel Sketches
Residential Card 1
A
MAIN
546 square feet
B
OFP OPEN FRAME PORCH
208 square feet
C
1S FR ONE STORY FRAME
156 square feet
D
OFP OPEN FRAME PORCH
35 square feet
Parcel Images
Please note:
this tab is for informational purposes only and may not show all delinquencies, see the Taxes tab for more accurate delinquent taxes due.