Elected Officials
Courts
Departments
Initiatives
Open Government
About
Login / Register
Home
/
Property & Tax Records
/
Property Records
/
Property & Tax Search
/
Parcel Profile
/
Print View
Search for Another Parcel
Parcel Profile
Historical Card
Sketches
Photos
Tax Map
Taxes
Print View
Print This Page
Address: 14814 KIMBALL HILL RD
Parcel: 43001001000300
Parcel Profile
Address
14814 | KIMBALL HILL | RD
Street Status
PAVED
School District
UNION CITY AREA SCHOOL
Acreage
1.7400
Classification
R
Land Use Code
SINGLE FAMILY
Legal Description
14814 KIMBALL HILL RD 1.747 AC
Square Feet
1510
Topo
LEVEL
Utility
WELL | SEPTIC
Zoning
Please contact your municipal zoning officer
Deed Book
2018
Deed Page
015338
2026 Tax Values
Land Value / Taxable
19,300 / 19,300.00
Building Value / Taxable
64,700 / 64,700.00
Total Value / Taxable
84,000 / 84,000.00
Clean & Green
Inactive
Homestead Status
Active
Farmstead Status
Inactive
Lerta Amount
0
Lerta Expiration Year
0
Residential Data
Card 1
Style
OLD STYLE
Basement
CRAWL
Year Built
1878
Exterior Wall
ALUMINUM/VINYL
Total Living Area
1510
Full Baths
1
Half Baths
0
Fuel Type
PROPANE
Heating
CENTRAL
Heating System
FORCED AIR
Stories
1.0
Total Bedrooms
2
Total Family Rooms
0
Total Rooms
4
Fireplaces
0
Other Buildings & Yards
Description
Built
Width
Length
Area
FRAME OR CB DETACHED GARAGE
2001
36
28
1008
Sales History
Sale Date
Type
Price
Book / Page
Other Info
7/30/2018
LAND & BUILDING
167800
2018 / 015338
DEED
5/6/1999
LAND & BUILDING
45000
638 / 1956
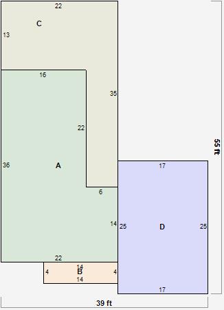
Parcel Sketches
Residential Card 1
A
MAIN
660 square feet
B
OFP OPEN FRAME PORCH
56 square feet
C
WDDCK WOOD DECKS
418 square feet
D
UNFIN BSMT BASEMENT UNFINISHED 1S FR ONE STORY FRAME 1S FR ONE STORY FRAME
425 square feet
Parcel Images
Please note:
this tab is for informational purposes only and may not show all delinquencies, see the Taxes tab for more accurate delinquent taxes due.