Elected Officials
Courts
Departments
Initiatives
Open Government
About
Login / Register
Home
/
Property & Tax Records
/
Property Records
/
Property & Tax Search
/
Parcel Profile
/
Print View
Search for Another Parcel
Parcel Profile
Historical Card
Sketches
Photos
Tax Map
Taxes
Print View
Print This Page
Address: 8520 HANLIN CROSS RD
Parcel: 43002006000602
Parcel Profile
Address
8520 | HANLIN CROSS | RD
Street Status
UNPAVED
School District
UNION CITY AREA SCHOOL
Acreage
2.4810
Classification
R
Land Use Code
SINGLE FAMILY
Legal Description
8520 HANLIN CROSS RD LOT 1 2.481 AC NET
Square Feet
1542
Topo
LEVEL
Utility
WELL | SEPTIC
Zoning
Please contact your municipal zoning officer
Deed Book
0236
Deed Page
0237
2026 Tax Values
Land Value / Taxable
20,700 / 20,700.00
Building Value / Taxable
52,900 / 52,900.00
Total Value / Taxable
73,600 / 73,600.00
Clean & Green
Inactive
Homestead Status
Active
Farmstead Status
Inactive
Lerta Amount
0
Lerta Expiration Year
0
Residential Data
Card 1
Style
OLD STYLE
Basement
NONE
Year Built
1890
Exterior Wall
ALUMINUM/VINYL
Total Living Area
1542
Full Baths
1
Half Baths
0
Fuel Type
OIL
Heating
CENTRAL
Heating System
FORCED AIR
Stories
1.5
Total Bedrooms
3
Total Family Rooms
0
Total Rooms
7
Fireplaces
0
Other Buildings & Yards
Description
Built
Width
Length
Area
FRAME OR CB DETACHED GARAGE
1973
26
36
936
Sales History
Sale Date
Type
Price
Book / Page
Other Info
10/21/1992
0
0236 / 0237
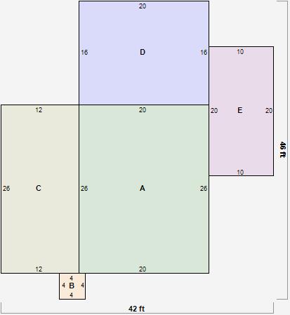
Parcel Sketches
Residential Card 1
A
MAIN
520 square feet
B
WDDCK WOOD DECKS
16 square feet
C
1S FR ONE STORY FRAME
312 square feet
D
1S FR ONE STORY FRAME
320 square feet
E
WDDCK WOOD DECKS
200 square feet
Parcel Images
Please note:
this tab is for informational purposes only and may not show all delinquencies, see the Taxes tab for more accurate delinquent taxes due.