Elected Officials
Courts
Departments
Initiatives
Open Government
About
Login / Register
Home
/
Property & Tax Records
/
Property Records
/
Property & Tax Search
/
Parcel Profile
/
Print View
Search for Another Parcel
Parcel Profile
Historical Card
Sketches
Photos
Tax Map
Taxes
Print View
Print This Page
Address: 15597 ROUTE 8
Parcel: 43002009002200
Parcel Profile
Address
15597 | ROUTE 8
Street Status
PAVED
School District
UNION CITY AREA SCHOOL
Acreage
1.0000
Classification
R
Land Use Code
SINGLE FAMILY
Legal Description
15597 ROUTE 8 1 AC
Square Feet
1356
Topo
LEVEL
Utility
GAS | WELL | SEPTIC
Zoning
Please contact your municipal zoning officer
Deed Book
2014
Deed Page
019131
2026 Tax Values
Land Value / Taxable
17,800 / 17,800.00
Building Value / Taxable
63,310 / 63,310.00
Total Value / Taxable
81,110 / 81,110.00
Clean & Green
Inactive
Homestead Status
Inactive
Farmstead Status
Inactive
Lerta Amount
0
Lerta Expiration Year
0
Residential Data
Card 1
Style
BUNGALOW
Basement
FULL
Year Built
1927
Exterior Wall
ALUMINUM/VINYL
Total Living Area
1356
Full Baths
1
Half Baths
0
Fuel Type
GAS
Heating
CENTRAL
Heating System
FORCED AIR
Stories
1.0
Total Bedrooms
3
Total Family Rooms
0
Total Rooms
6
Fireplaces
1
Other Buildings & Yards
Description
Built
Width
Length
Area
FOUR SIDE CLOSED WD POLE BLDG
1999
40
32
1280
FOUR SIDE CLOSED MTL POLE BLDG
1977
30
30
900
CANOPY
1977
10
30
300
Sales History
Sale Date
Type
Price
Book / Page
Other Info
9/10/2014
LAND & BUILDING
0
2014 / 019131
SPECIAL WARRANTY DEED
12/31/2013
LAND & BUILDING
0
2013 / 033344
SPECIAL WARRANTY DEED
5/28/1969
0
1003 / 0266
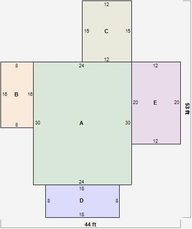
Parcel Sketches
Residential Card 1
A
MAIN
720 square feet
B
OFP OPEN FRAME PORCH
128 square feet
C
MA_PT CONC/MAS PATIO
180 square feet
D
EFP ENCL FRAME PORCH
144 square feet
E
1S FR ONE STORY FRAME
240 square feet
Parcel Images
Please note:
this tab is for informational purposes only and may not show all delinquencies, see the Taxes tab for more accurate delinquent taxes due.