Elected Officials
Courts
Departments
Initiatives
Open Government
About
Login / Register
Home
/
Property & Tax Records
/
Property Records
/
Property & Tax Search
/
Parcel Profile
/
Print View
Search for Another Parcel
Parcel Profile
Historical Card
Sketches
Photos
Tax Map
Taxes
Print View
Print This Page
Address: 15645 OLD WATTSBURG RD
Parcel: 43003010000100
Parcel Profile
Address
15645 | OLD WATTSBURG | RD
Street Status
UNPAVED
School District
UNION CITY AREA SCHOOL
Acreage
23.4230
Classification
F
Land Use Code
80 ACRES OR MORE
Legal Description
15645 OLD WATTSBURG RD LOT A 23.423 AC
Square Feet
1208
Topo
ROLLING
Utility
WELL | SEPTIC
Zoning
Please contact your municipal zoning officer
Deed Book
2010
Deed Page
026396
2026 Tax Values
Land Value / Taxable
39,500 / 39,500.00
Building Value / Taxable
76,300 / 76,300.00
Total Value / Taxable
115,800 / 115,800.00
Clean & Green
Inactive
Homestead Status
Inactive
Farmstead Status
Inactive
Lerta Amount
0
Lerta Expiration Year
0
Residential Data
Card 1
Style
OLD STYLE
Basement
FULL
Year Built
1850
Exterior Wall
ALUMINUM/VINYL
Total Living Area
1208
Full Baths
1
Half Baths
0
Fuel Type
OIL
Heating
CENTRAL
Heating System
FORCED AIR
Stories
1.5
Total Bedrooms
3
Total Family Rooms
0
Total Rooms
6
Fireplaces
0
Other Buildings & Yards
Description
Built
Width
Length
Area
FRAME UTILITY SHED
1900
14
25
350
FLAT BARN ADDITION
2010
19
30
570
Sales History
Sale Date
Type
Price
Book / Page
Other Info
10/22/2010
LAND & BUILDING
120000
2010 / 026396
SPECIAL WARRANTY DEED
8/18/2006
LAND & BUILDING
110000
1353 / 2055
DEED
6/6/2002
LAND & BUILDING
0
887 / 2112
QUIT/CLAIM SURVIVORSHIP
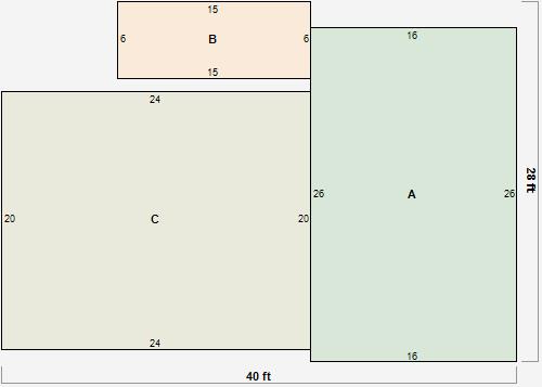
Parcel Sketches
Residential Card 1
A
MAIN
416 square feet
B
OFP OPEN FRAME PORCH
90 square feet
C
UNFIN BSMT BASEMENT UNFINISHED 1S FR ONE STORY FRAME AT UN ATTIC-UNFINISHED
480 square feet
Parcel Images
Please note:
this tab is for informational purposes only and may not show all delinquencies, see the Taxes tab for more accurate delinquent taxes due.