Elected Officials
Courts
Departments
Initiatives
Open Government
About
Login / Register
Home
/
Property & Tax Records
/
Property Records
/
Property & Tax Search
/
Parcel Profile
/
Print View
Search for Another Parcel
Parcel Profile
Historical Card
Sketches
Photos
Tax Map
Taxes
Print View
Print This Page
Address: 10120 MITCHELL RD
Parcel: 43006018001900
Parcel Profile
Address
10120 | MITCHELL | RD
Street Status
UNPAVED
School District
UNION CITY AREA SCHOOL
Acreage
71.2500
Classification
E
Land Use Code
EXEMPT SERVICE CONNECTED (VETERANS)
Legal Description
10120 MITCHELL RD 71.25 AC
Square Feet
3353
Topo
ROLLING | STEEP
Utility
GAS | WELL | SEPTIC
Zoning
Please contact your municipal zoning officer
Deed Book
2024
Deed Page
021048
2026 Tax Values
Land Value / Taxable
101,200 / 101,200.00
Building Value / Taxable
76,100 / 76,100.00
Total Value / Taxable
177,300 / 177,300.00
Clean & Green
Inactive
Homestead Status
Inactive
Farmstead Status
Inactive
Lerta Amount
0
Lerta Expiration Year
0
Residential Data
Card 1
Style
CAPE
Basement
NONE
Year Built
1938
Exterior Wall
FRAME
Total Living Area
3353
Full Baths
2
Half Baths
0
Fuel Type
GAS
Heating
CENTRAL
Heating System
FORCED AIR
Stories
1.5
Total Bedrooms
3
Total Family Rooms
0
Total Rooms
5
Fireplaces
0
Other Buildings & Yards
Description
Built
Width
Length
Area
FRAME UTILITY SHED
1978
18
20
360
FOUR SIDE CLOSED MTL POLE BLDG
1978
24
38
912
Sales History
Sale Date
Type
Price
Book / Page
Other Info
12/23/2024
LAND & BUILDING
335000
2024 / 021048
SPECIAL WARRANTY DEED
8/29/2006
LAND & BUILDING
0
1362 / 1560
QUIT CLAIM DEED
8/23/1991
0
0173 / 1996
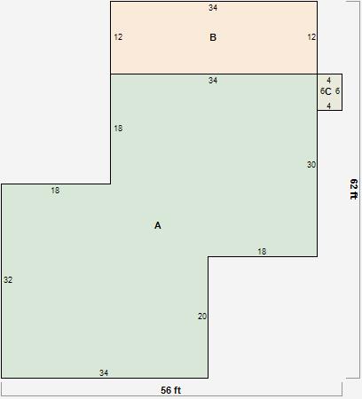
Parcel Sketches
Residential Card 1
A
MAIN
1916 square feet
B
OFP OPEN FRAME PORCH
408 square feet
C
OFP OPEN FRAME PORCH
24 square feet
Parcel Images
Please note:
this tab is for informational purposes only and may not show all delinquencies, see the Taxes tab for more accurate delinquent taxes due.