Elected Officials
Courts
Departments
Initiatives
Open Government
About
Login / Register
Home
/
Property & Tax Records
/
Property Records
/
Property & Tax Search
/
Parcel Profile
/
Print View
Search for Another Parcel
Parcel Profile
Historical Card
Sketches
Photos
Tax Map
Taxes
Print View
Print This Page
Address: 9670 MITCHELL RD
Parcel: 43007018002600
Parcel Profile
Address
9670 | MITCHELL | RD
Street Status
UNPAVED
School District
UNION CITY AREA SCHOOL
Acreage
1.0000
Classification
R
Land Use Code
SINGLE FAMILY
Legal Description
9670 MITCHELL RD 1 AC
Square Feet
768
Topo
LEVEL
Utility
WELL | SEPTIC
Zoning
Please contact your municipal zoning officer
Deed Book
1451
Deed Page
2353
2026 Tax Values
Land Value / Taxable
18,100 / 18,100.00
Building Value / Taxable
26,900 / 26,900.00
Total Value / Taxable
45,000 / 45,000.00
Clean & Green
Inactive
Homestead Status
Active
Farmstead Status
Inactive
Lerta Amount
0
Lerta Expiration Year
0
Residential Data
Card 1
Style
BUNGALOW
Basement
FULL
Year Built
1949
Exterior Wall
COMPOSITION
Total Living Area
768
Full Baths
1
Half Baths
0
Fuel Type
OIL
Heating
CENTRAL
Heating System
FORCED AIR
Stories
1.0
Total Bedrooms
2
Total Family Rooms
0
Total Rooms
4
Fireplaces
0
Other Buildings & Yards
Description
Built
Width
Length
Area
FRAME OR CB DETACHED GARAGE
1996
12
22
264
Sales History
Sale Date
Type
Price
Book / Page
Other Info
10/5/2007
LAND & BUILDING
0
1451 / 2353
QUIT CLAIM DEED
5/9/2007
LAND & BUILDING
0
1414 / 1679
QUIT CLAIM DEED
1/1/1969
0
0613 / 0440
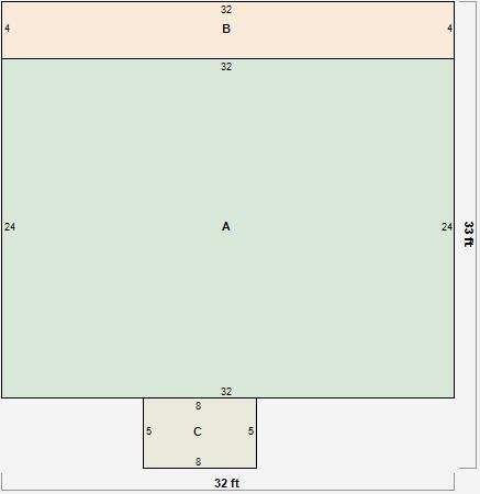
Parcel Sketches
Residential Card 1
A
MAIN
768 square feet
B
OFP OPEN FRAME PORCH
128 square feet
C
EFP ENCL FRAME PORCH
40 square feet
Parcel Images
Please note:
this tab is for informational purposes only and may not show all delinquencies, see the Taxes tab for more accurate delinquent taxes due.