Elected Officials
Courts
Departments
Initiatives
Open Government
About
Login / Register
Home
/
Property & Tax Records
/
Property Records
/
Property & Tax Search
/
Parcel Profile
/
Print View
Search for Another Parcel
Parcel Profile
Historical Card
Sketches
Photos
Tax Map
Taxes
Print View
Print This Page
Address: 15705 ROUTE 8
Parcel: 43008009001900
Parcel Profile
Address
15705 | ROUTE 8
Street Status
PAVED
School District
UNION CITY AREA SCHOOL
Acreage
5.0000
Classification
R
Land Use Code
MULTIPLE DWELLINGS
Legal Description
15705 ROUTE 8 5 AC
Square Feet
702
Topo
LEVEL
Utility
GAS | WELL | SEPTIC
Zoning
Please contact your municipal zoning officer
Deed Book
1401
Deed Page
0007
2026 Tax Values
Land Value / Taxable
25,200 / 25,200.00
Building Value / Taxable
14,900 / 14,900.00
Total Value / Taxable
40,100 / 40,100.00
Clean & Green
Inactive
Homestead Status
Inactive
Farmstead Status
Inactive
Lerta Amount
0
Lerta Expiration Year
0
Residential Data
Card 1
Style
BUNGALOW
Basement
NONE
Year Built
1890
Exterior Wall
COMPOSITION
Total Living Area
702
Full Baths
1
Half Baths
0
Fuel Type
GAS
Heating
NON CENTRAL
Heating System
NONE
Stories
1.0
Total Bedrooms
1
Total Family Rooms
0
Total Rooms
3
Fireplaces
0
Other Buildings & Yards
Description
Built
Width
Length
Area
FLAT BARN
1900
22
32
704
1S LEAN TO
1900
14
26
364
Sales History
Sale Date
Type
Price
Book / Page
Other Info
10/14/1980
0
1401 / 0007
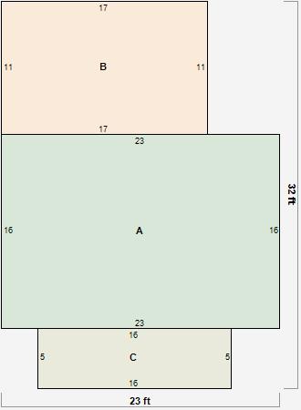
Parcel Sketches
Residential Card 1
A
MAIN
368 square feet
B
1S FR ONE STORY FRAME
187 square feet
C
EFP ENCL FRAME PORCH
80 square feet
Parcel Images
Please note:
this tab is for informational purposes only and may not show all delinquencies, see the Taxes tab for more accurate delinquent taxes due.