Elected Officials
Courts
Departments
Initiatives
Open Government
About
Login / Register
Home
/
Property & Tax Records
/
Property Records
/
Property & Tax Search
/
Parcel Profile
/
Print View
Search for Another Parcel
Parcel Profile
Historical Card
Sketches
Photos
Tax Map
Taxes
Print View
Print This Page
Address: 8304 ROUTE 97
Parcel: 43009004001100
Parcel Profile
Address
8304 | ROUTE 97
Street Status
PAVED
School District
UNION CITY AREA SCHOOL
Acreage
7.2500
Classification
R
Land Use Code
SINGLE FAMILY
Legal Description
8304 ROUTE 97 6.25 AC
Square Feet
1558
Topo
ROLLING
Utility
WELL | SEPTIC
Zoning
Please contact your municipal zoning officer
Deed Book
2018
Deed Page
000403
2026 Tax Values
Land Value / Taxable
29,300 / 29,300.00
Building Value / Taxable
54,300 / 54,300.00
Total Value / Taxable
83,600 / 83,600.00
Clean & Green
Inactive
Homestead Status
Active
Farmstead Status
Inactive
Lerta Amount
0
Lerta Expiration Year
0
Residential Data
Card 1
Style
CAPE
Basement
FULL
Year Built
1928
Exterior Wall
FRAME
Total Living Area
1558
Full Baths
1
Half Baths
0
Fuel Type
GAS
Heating
CENTRAL
Heating System
HOT WATER
Stories
1.0
Total Bedrooms
3
Total Family Rooms
0
Total Rooms
4
Fireplaces
0
Other Buildings & Yards
Description
Built
Width
Length
Area
FRAME OR CB DETACHED GARAGE
1949
24
32
768
Sales History
Sale Date
Type
Price
Book / Page
Other Info
1/8/2018
LAND & BUILDING
0
2018 / 000403
DEED
12/29/2014
LAND & BUILDING
0
2014 / 027714
SPECIAL WARRANTY DEED
9/1/2009
LAND & BUILDING
80000
1587 / 1313
DEED
6/22/1965
0
0918 / 0461
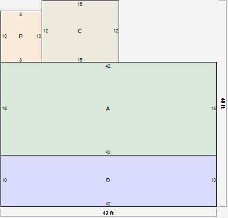
Parcel Sketches
Residential Card 1
A
MAIN
756 square feet
B
1S FR ONE STORY FRAME
80 square feet
C
EFP ENCL FRAME PORCH
180 square feet
D
1S FR ONE STORY FRAME
420 square feet
Parcel Images
Please note:
this tab is for informational purposes only and may not show all delinquencies, see the Taxes tab for more accurate delinquent taxes due.