Elected Officials
Courts
Departments
Initiatives
Open Government
About
Login / Register
Home
/
Property & Tax Records
/
Property Records
/
Property & Tax Search
/
Parcel Profile
/
Print View
Search for Another Parcel
Parcel Profile
Historical Card
Sketches
Photos
Tax Map
Taxes
Print View
Print This Page
Address: 8018 ROUTE 6
Parcel: 43011030001600
Parcel Profile
Address
8018 | ROUTE 6
Street Status
PAVED
School District
UNION CITY AREA SCHOOL
Acreage
8.0600
Classification
R
Land Use Code
SINGLE FAMILY
Legal Description
8018 ROUTE 6 8.064 AC
Square Feet
2414
Topo
ABOVE STREET | ROLLING
Utility
WELL | SEPTIC
Zoning
Please contact your municipal zoning officer
Deed Book
0239
Deed Page
1474
2026 Tax Values
Land Value / Taxable
30,700 / 30,700.00
Building Value / Taxable
74,100 / 74,100.00
Total Value / Taxable
104,800 / 104,800.00
Clean & Green
Inactive
Homestead Status
Active
Farmstead Status
Inactive
Lerta Amount
0
Lerta Expiration Year
0
Residential Data
Card 1
Style
OLD STYLE
Basement
FULL
Year Built
1900
Exterior Wall
ALUMINUM/VINYL
Total Living Area
2414
Full Baths
1
Half Baths
1
Fuel Type
PROPANE
Heating
CENTRAL
Heating System
NONE
Stories
2.0
Total Bedrooms
4
Total Family Rooms
1
Total Rooms
8
Fireplaces
1
Other Buildings & Yards
Description
Built
Width
Length
Area
FOUR SIDE CLOSED MTL POLE BLDG
1970
36
50
1800
14'X10' SLIDE DOOR
1970
0
0
1
Sales History
Sale Date
Type
Price
Book / Page
Other Info
11/12/1992
0
0239 / 1474
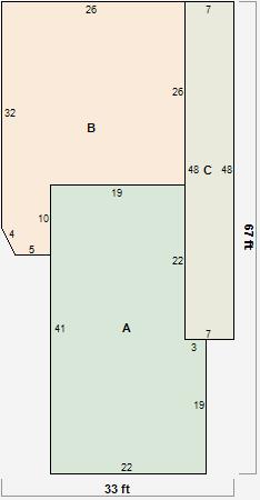
Parcel Sketches
Residential Card 1
A
MAIN
836 square feet
B
1S FR ONE STORY FRAME
742 square feet
C
OFP OPEN FRAME PORCH
336 square feet
Parcel Images
Please note:
this tab is for informational purposes only and may not show all delinquencies, see the Taxes tab for more accurate delinquent taxes due.