Elected Officials
Courts
Departments
Initiatives
Open Government
About
Login / Register
Home
/
Property & Tax Records
/
Property Records
/
Property & Tax Search
/
Parcel Profile
/
Print View
Search for Another Parcel
Parcel Profile
Historical Card
Sketches
Photos
Tax Map
Taxes
Print View
Print This Page
Address: 7800 OLD MEADVILLE RD
Parcel: 43011032000100
Parcel Profile
Address
7800 | OLD MEADVILLE | RD
Street Status
SEMI IMPROVED
School District
UNION CITY AREA SCHOOL
Acreage
10.6200
Classification
R
Land Use Code
SINGLE FAMILY
Legal Description
7800 OLD MEADVILLE RD 9.81 AC
Square Feet
1744
Topo
ABOVE STREET | ROLLING
Utility
WELL | SEPTIC
Zoning
Please contact your municipal zoning officer
Deed Book
1074
Deed Page
0602
2026 Tax Values
Land Value / Taxable
29,500 / 29,500.00
Building Value / Taxable
74,760 / 74,760.00
Total Value / Taxable
104,260 / 104,260.00
Clean & Green
Inactive
Homestead Status
Active
Farmstead Status
Inactive
Lerta Amount
0
Lerta Expiration Year
0
Residential Data
Card 1
Style
OLD STYLE
Basement
FULL
Year Built
1880
Exterior Wall
ALUMINUM/VINYL
Total Living Area
1744
Full Baths
2
Half Baths
0
Fuel Type
OIL
Heating
CENTRAL
Heating System
HOT WATER
Stories
2.0
Total Bedrooms
3
Total Family Rooms
0
Total Rooms
8
Fireplaces
1
Other Buildings & Yards
Description
Built
Width
Length
Area
FLAT BARN
1957
28
50
1400
FLAT BARN
1986
16
50
800
Sales History
Sale Date
Type
Price
Book / Page
Other Info
7/29/1972
0
1074 / 0602
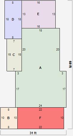
Parcel Sketches
Residential Card 1
A
MAIN
768 square feet
B
OFP OPEN FRAME PORCH
80 square feet
C
OFP OPEN FRAME PORCH
105 square feet
D
EFP ENCL FRAME PORCH
144 square feet
E
UNFIN BSMT BASEMENT UNFINISHED 1S FR ONE STORY FRAME
208 square feet
F
EFP ENCL FRAME PORCH
220 square feet
Parcel Images
Please note:
this tab is for informational purposes only and may not show all delinquencies, see the Taxes tab for more accurate delinquent taxes due.